Предлагаме за продажба тристаен апартамент в новострояща се жилищна сграда с асансьор.
📍 Локация
Имотът е разположен в удобна и комуникативна част на кв. Запад, с лесен достъп до магазини, училища, детска градина, градски и междуградски транспорт - всичко необходимо за едно спокойно ежедневие.
🏡 Характеристики на апартамента
Разположен на 1-ти етаж от общо 6
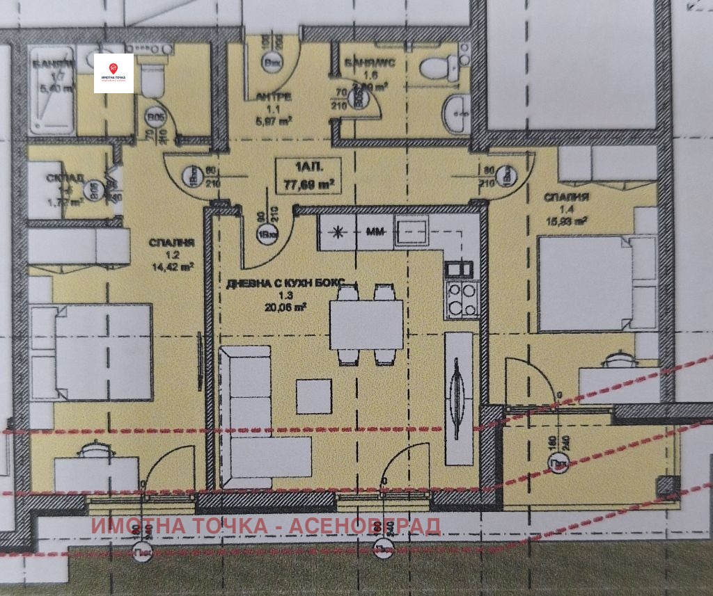
Просторни и правилно разпределени помещения
Югозападно изложение, което осигурява светли и топли стаи през целия ден
На шпакловка и замазка - завършете го по начин, който отразява вашия характер и усещане за уют
🚗 Паркиране
Към апартамента може да бъде закупено паркомясто или гараж- сигурно и удобно решение за вашия автомобил.
Това е имот, съчетаващ уют, практичност и комфорт!
Идеален избор за семейства, които търсят модерно строителство.







