Тристаен апартамент със собствен двор !! Бутикова сграда !! На метри от МОЛ Парадайс и бул.Черни връх !! Гъвкави схеми на плащане !! Отлични разпределения !!
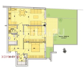
HOME2U недвижими имоти представя на Вашето внимание четиристаен апартамент със собствен двор, който е със следното разпределение, а именно: всекидневна с кухненски кът, две спални, две бани с тоалетна и собствен двор. Жилището е с ЮГОЗАПАДНО изложение и във всички помещения на имота е изградена система за подово отопление.
Сградата в която се намира апартаментът е с най-висок клас алуминиева дограма REYNAERS с тройни стъклопакети, топлоизолация, шумоизолация и водно подово отопление, осигурявано от газови котли или от термопомпи. Фасадите на сградата са с каменни облицовки и декоративни мазилки, настилките в общите части са от камък и гранитогрес, терасите са с настилки от гранитогрес и стъклени парапети.
Местоположението на сградата е най-комуникативната за района, а именно: Мол Парадайс на 700м., бул. Черни връх, частно училище на 500м., международно висше бизнес училище на 700м., тенис кортове на 400м.
Сградата разполага с две нива подземни гаражи и паркоместа, с луксозен асансьор, с контрол на достъпа и с открита озеленена тераса за общо ползване над втория етаж.
Етапът на стоителство е пред АКТ 15, като срока за въвеждане в експлоатация АКТ 16 е предвиден за юни месец 2026 год.
За ваше улеснение прилагаме схема н на разпределение.
За повече информация, огледи покупка се обадете сега и цитирайте следния код: 136154







