ТОПИММО предлага за продажба нов проект в района на ж.к. Кайсиева градина .
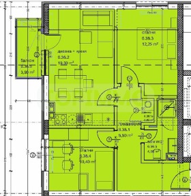
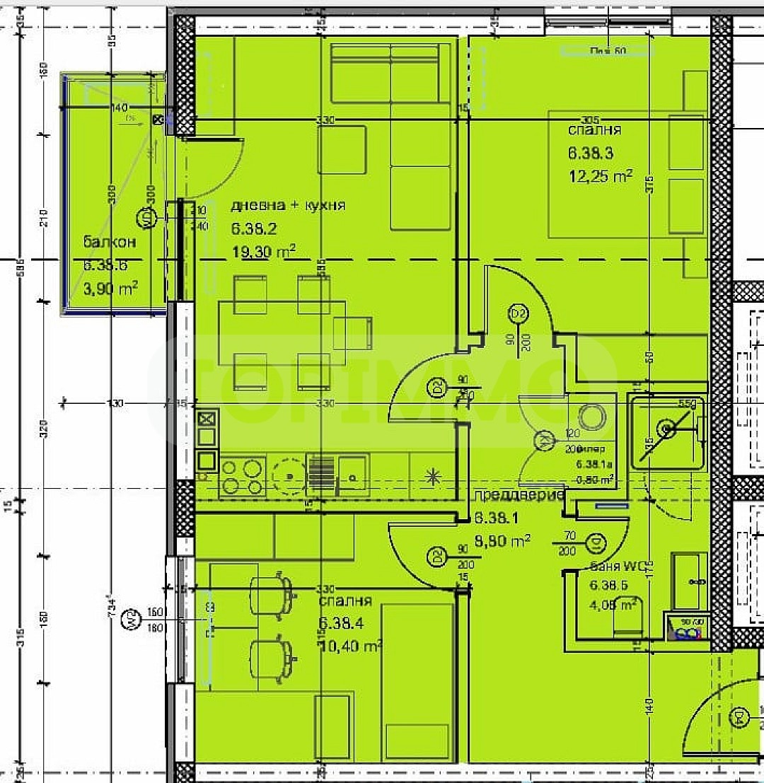
Имотът, който представяме се намира на единадесети етаж от дванадесет, със западно изложение и следното разпределение: Г-образен коридор с килер, всекидневна с кухненска част 19.30 кв.м. с излаз на тераса, спалня 10.40 кв.м., втора спалня 12.25 кв.м., санитарен възел.
С възможност за закупуване на паркомясто или гараж. Гъвкави схеми на плащане.
Инвестирате сега и получавате гарантирано качество с фиксирана цена до края на строителството.
Можем да организираме оглед в удобно за вас време, свържете се с нас! Референтен номер: PL-4378







