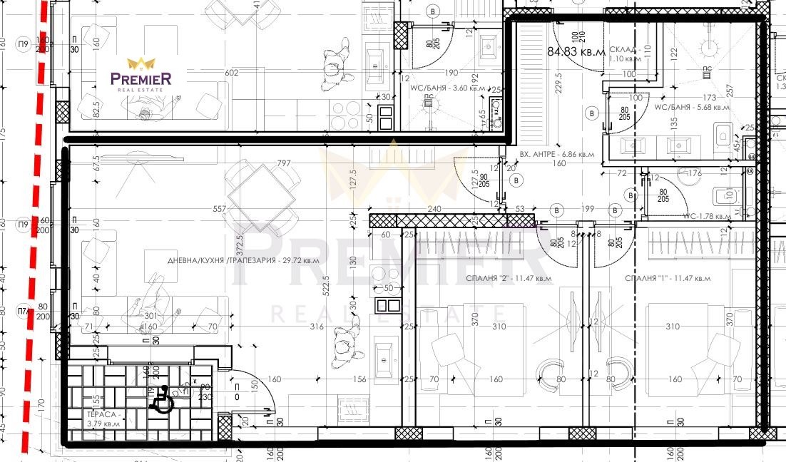
Апартаментът е с площ 99кв.м и се състои от: входно антре, просторен дневен тракт 30кв.м, две спални по 12кв.м, обща баня с тоалетна, втора отделна тоалетна, килер, тераса. Разпределението на имота го прави удобно и функционално семейно жилище три сервизни помещения и просторни стаи. Изложението на стаите е югозападно, коеот осигурява максимална осветеност и топлина в имота.
Намира се на трети етаж от общо 5 в новострояща се жилищна сграда. Възможност за закупуване на самостоятелен гараж за 31 500 евро или паркомясто за 16 000 евро.
Сградата се намира на 500 метра над бул. Христо Смирненски, перфектен асфалтов достъп. Доказан строител, залагащ на модерна визия и качествени устойчиви материали. Възможност за разсрочено плащане.
ПРЕДИМСТВА:
-статут апартамент
-правилни форми
-изцвло покрит без отстъпи
-разсрочено плащане
-модерна сграда
-южно изложение
-малка жилищна сграда
-опция за паркомясто/гараж
За повече информация и оглед не се колебайте да се обадите на посочения номер за връзка! Код: 366644
Виж всички обяви в imotipremier.bazar.bg или тук







