Отговорен брокер: Калина Иванова
Предлагаме ви отлична възможност за покупка на тристаен апартамент, разположен в модерна новострояща се сграда в един от най-перспективните райони на Варна кв. Изгрев. Сградата е с Акт 14 и се състои от десет жилищни етажа, организирани в два входа, с контролиран достъп и асансьор, проектирана с внимание към комфорта и съвременния начин на живот.
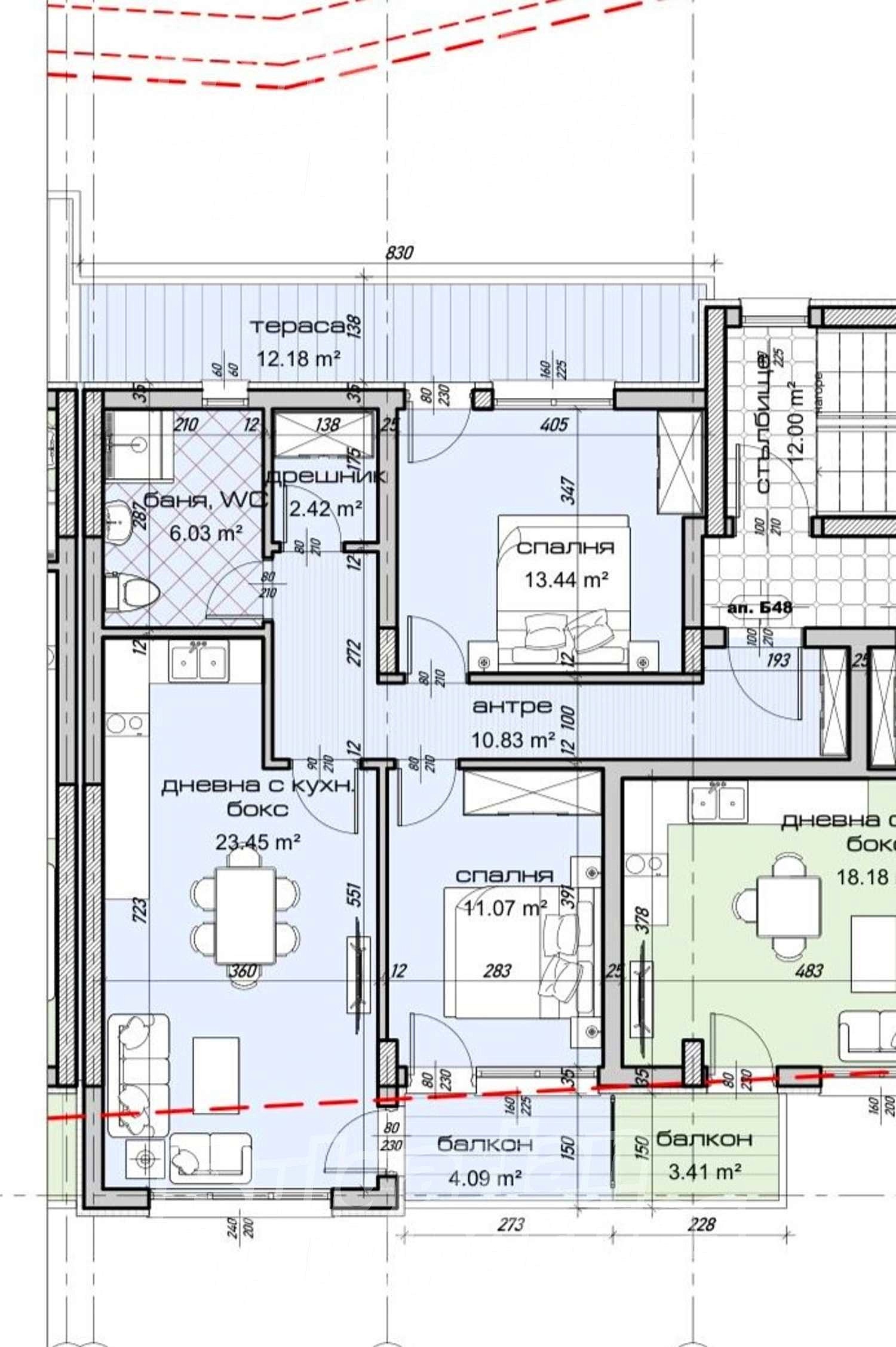
Апартаментът се намира на осмия етаж и разполага с функционално разпределение:
входно антре
просторна дневна с кухненска част
излаз към обща тераса
1 спалня, също ориентирана на юг
2-ра спалня на север със собствена тераса
голяма баня с тоалетна
удобен дрешник (или килер)
прилежащо избено помещение с площ от 2.41 кв.м.
Жилището впечатлява с прекрасна панорамна гледка към морето и града предимство, което рядко се среща.
Общата площ на имота е 113.50 кв.м, от които 101.32 кв.м чиста жилищна площ и 12.18 кв.м общи части. Изложението е североизток югоизток, което осигурява светлина през целия ден.
Апартаментът се предлага завършен по БДС (шпакловка и замазка), с възможност за завършване до ключ по избор на клиента. Към имота може да бъде закупено и подземно паркомясто допълнително удобство, което гарантира комфорт в ежедневието.
Това е идеален избор както за семейно жилище, така и за инвестиция с висока възвръщаемост в един от най-развиващите се райони на града.
Оглед на имота
Можем да организираме оглед на имота спрямо нашия график и възможностите за достъп до него. Заявете вашето желание за оглед, като се свържете с отговорния за офертата брокер по имейл или телефон.
Резервация на имота
Имотът може да бъде резервиран и свален от продажба със заплащане на депозит, след което се прекратява провеждането на огледи с други купувачи и започва подготовка на документите за сключване на предварителен и окончателен договор. Свържете се с отговорния брокер за подробна информация относно процедурата на покупка и начините за плащане.
Жилищен кредит
Ние си партнираме с водещите български банки и можем да ви свържем с техните консултанти за информация и кандидатстване за кредит.
...
Виж всички обяви в bpvarna.bazar.bg или тук



