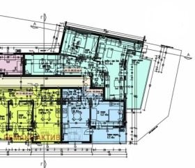
3стаен апартамент с изложение изток и морска панорама.
Разпределение:
дневен тракт - 24.73 м2
спалня - 14.69 м2
спалня - 12 м2
коридор - 7.18 м2
балкон - 18 м2
коридор - 7 м2
баня с тоалет - 4 м2
Имота се издава по БДС.
В непосредствена близост до училище Васил Левски и на броени крачки до ресторант/заведение 'Рибката'.







