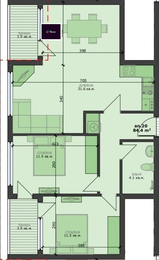
предлагаме на Вашето внимание тристаен апартамент с чиста застроена площ от 84.4кв.м. намиращ се на четвърти етаж в новострояща се сграда в кв. Погреби.
Имотът се намира на комуникативна локация с бърз достъп до ул. Девня, на пешеходно разстояние от търговски обекти, училища и основни транспортни връзки локация, която осигурява удобство и комфорт в ежедневието.
Апартаментът ще се състои от просторна дневна с кухнески бокс (31.6кв.м.), първа спалня (11.5кв.м.), втора спалня (11.5кв.м.), баня с тоалетна (4.1кв.м.), балкон (3.9кв.м.) и втори балкон (3.9кв.м.).
Възможност за закупуване на паркоместа!
Гъвкави схеми за разплащане.
В сградата са налични още разнообразни типове апартаменти двустайни и тристайни.
За повече информация и оглед се свържете с нас на 0884788229
Реф. номер: 90043
Виж всички обяви в roneva.bazar.bg или тук







