гр. Стара Загора, кв. Железник -Център
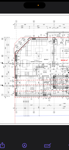
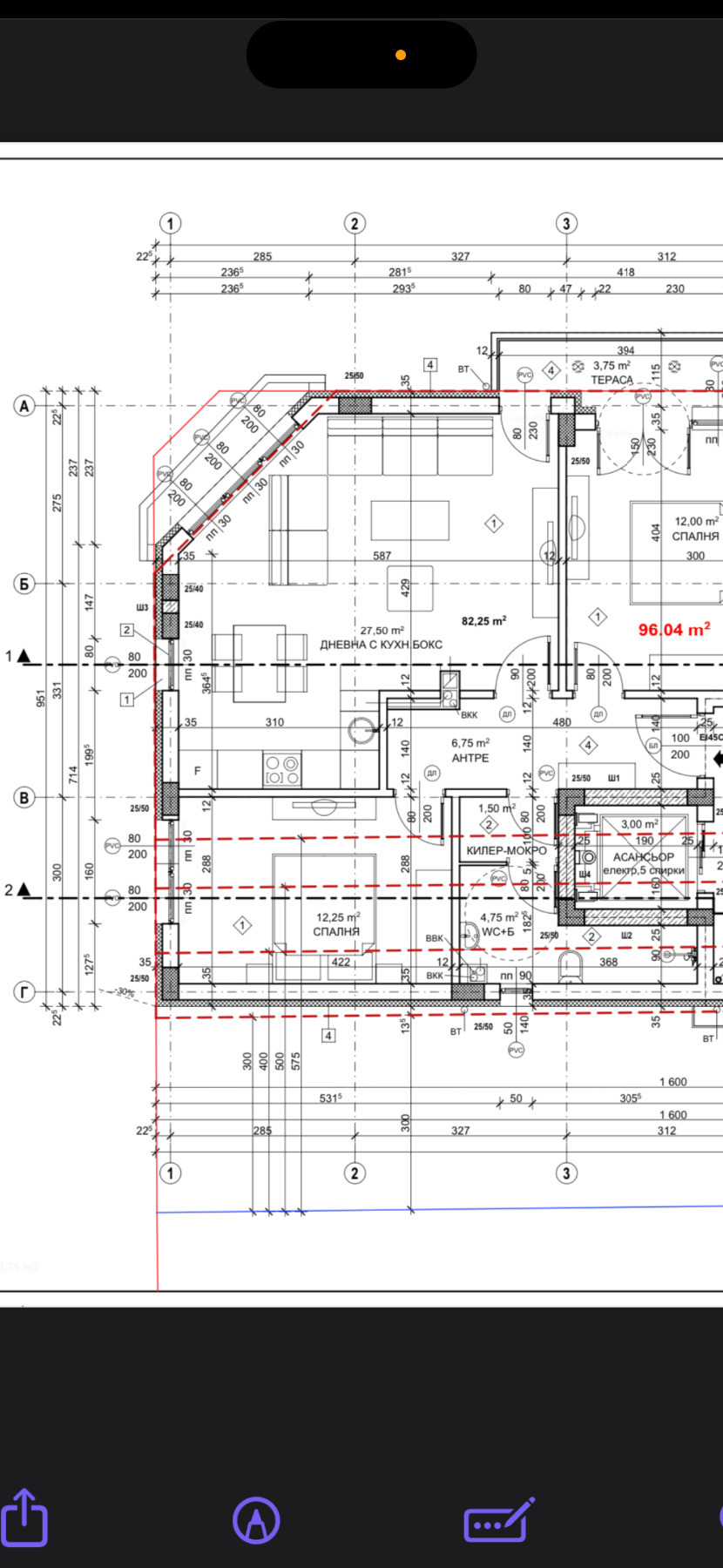
?Предлагаме за продажба просторен тристаен апартамент с площ 96 кв.м, разположен на 3-ти етаж от 4-етажна сграда в кв. Железник Център.
Разпределение:
две спални
хол с кухня
баня с тоалетна
мокро помещение
тераса
Сградата е в процес на строеж и ще бъде завършена с Акт 16 през лятото на 2026 г.
Изпълнителят е утвърдена строителна компания с дългогодишен опит в изграждането на жилищни сгради в Стара Загора, доказала се с високо качество на строителство, надеждност и спазване на срокове.
Виж всички обяви в gabriela89.bazar.bg или тук







