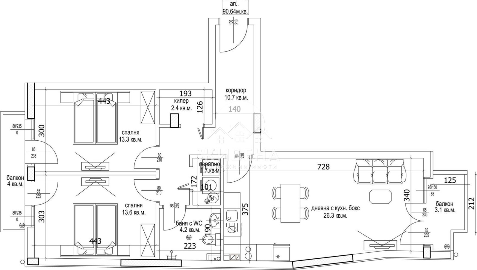
Агенция Живена предлага за продажба тристаен апартамент в малка жилищна сграда, в строеж, разположена на отлично място в Цветен квартал. Имотът е разположен на етаж 3 от 7, с обща площ - 103.56 кв.м, ЗП: 90.64 кв.м, с изложение: юг/северооизток. Състои се от дневна с кухненски бокс (26.3 кв.м), 2 спални (13.6 и 13.3 кв.м), баня с тоалетна (4.1 кв.м), килер (2.4 кв.м), перално (1.7 кв.м), коридор (10.7 кв.м) и лоджия (3.8 кв.м). Издава се в степен на завършеност по БДС: вътрешни стени - тухла с гипсова мазилка, тавани гипсокартон, под на стаи - циментова замазка, баня - тоалет: под циментова замазка, стени вароциментова мазилка, ел. инсталация: завършена напълно до ключове, контакти, оптичен кабел до апартамент; В и К инсталации: завършени до тапа; изграждане на тръбни връзки за монтаж на климатици, на определени по архитектура места; външна врата блиндирана с облечена декоративна каса; прозорци: висококачествена PVC дограма - 7 камерна с тройни стъклопакети, 6 мм четири сезона/ 4 мм бяло флоатно стъкло/ 4 мм К. Възможност за покупка на открити и закрити паркоместа на цени от 25 000 евро. Сградата е с модерна визия и се състои от 7 жилищни етажа и 1 подземно ниво (закрит паркинг). Започнат строеж - през март 2025, очакван Акт 16 - през лятото на 2027 г. Общи части на сградата: подови настилки и стъпала от гранитогрес или гранит; стени - декоративна мазилка; асансьор - ORONA; паркинг - шлайфан бетон на под; фасада - комбинация от мазилка с камък, HPL и керамика; покрив - хидро и топлоизолация. В сградата са налични и други тристайни апартаменти и един четиристаен мезонет. Предлагат се определени схеми на плащане след оставен депозит. Агенция Живена извършва необходимите проверки на имота, който сте избрали, организира всички етапи на сделката до нейното финализиране. Оказваме съдействие за отпускане на банков кредит. Оферта 7488







