Екипът на GLOBAL ESTATE има удоволствието да Ви представи най-новия си проект: ЖИЛИЩНА СГРАДА ЛОЗАНА - създаден с визия за устойчивост и комфорт, както и с потенциал да се превърне в перфектният градски дом за Вас и Вашето семейство.
ДИРЕКТНИ ЦЕНИ ОТ ИНВЕСТИТОР !
КАЧЕСТВЕНО СТРОИТЕЛСТВО !
АТРАКТИВНА СХЕМА НА ПЛАЩАНЕ БЕЗ ОСКЪПЯВАНЕ !
---
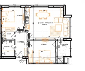
Ап. 4, вх. А, ет. 2 /първи жилищен етаж/
---
Ключовото местоположение на Жилищната сграда ЛОЗАНА в една от най-зелените и комуникативни части на района, Ви дава възможността да се насладите на тишината, спокойствието и красивите панорамни гледки към паркове, без да правите компромис с близостта до всички важни точки в града.
---
ЖИЛИЩНАТА СГРАДА ЛОЗАНА предлага перфектаната комбинация от функционален дизайн и съвременни архитектурни решения.
Сградата разполага с гаражи и открити паркоместа с изградена инфраструктура. Външни стени с дебелина 25 см. и топлоизолация от EPS F с дебелина 10 см. Вентилируемата окачена фасада. Светлата височина на таваните е 2.75м., а осветеността се допълва от панорамни прозорци и висококачествена петкамерна PVC дограма с троен стъклопакет. Отоплението на сградата е решено с индивидуални газови кондензни котли. Освен това всяка стая разполага с инфраструктура за монтиране на климатизация.
---
Състои се от 40 просторни апартамента, разпределени на четири етажа и детски кът.
Апартаментите са със следната конфигурация:
Партер: Търговски площи и гаражи;
Етаж 1,2 и 3 (типови): Апартаменти с една и две спални на всеки етаж;
---
Ключови характеристики:
Гаражи и открити паркоместа с изградена индивидуална инфраструктура;
Външни и преградни стени с дебелина от 25 см.;
Топлоизолация от EPS F с дебелина от 10 см.;
Вентилируема окачена фасада;
Панорамни прозорци;
Висококачествена PVC дограма с петкамерен профил и троен стъклопакет.
Светла височина на таваните 2.75м.;
Отополение с индивидуални газови котли;
Изградена инфраструтура за климатизация във всяка стая;
Клас на енергийна ефективност на сградата: Б;
Удобен достъп до публичен транспорт - автобусни линии и др.;
Близост до основни за града пътни артерии и локации;
Локация в нискоемисионна зона.
---
Местоположение
Разположена е зад магазин Лидл. Сградата се намира в близост до всички необходими градски удобства - търговски центрове, вериги и магазини за хранителни и нехранителни стоки, спирки на градския транспорт, паркове, спортни съоръжения и др.
---
Строителство
Подбрали сме висок клас строителни материали и съоръжения от водещи в областта производители.
---
Предимства на жилищата
Сградата разполага с обширни двустайни, тристайни и читиристайни апартамента. Дизайнът е насочен към осигуряване на максимално жилищно пространство с минимални общи части. Преобладаващото южно изложение, панорамните прозорци и високите тавани позволяват навлизането на оптимално количество дневна светлина, което допринася към цялостното усещане за простор и уют.







