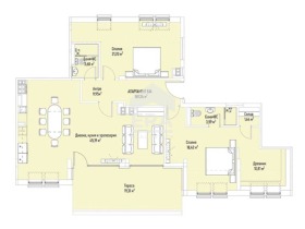
Разпределение: входно антре, дневнса с кухненски бокс и трапезария 45 кв. м., 2 просторни спални, дрешник, 2 бани с тоалетна, склад и панорамна тераса 19.31 кв. м. Изложение: Югоизток.
Обща площ: 201.08 кв. м.
Застроена площ: 169.24 кв. м.
Разпределена на 9 етажа, сградата е със смесено предназначение и е разделена на два входа, а паркирането е решено с паркоместа и гаражи на две подземни нива. Всички цени са без ДДС!
Технически характеристики:
- стоманобетонна конструкция с външни 25 см тухлени стени с ефективна топлоизолация според проект по енергийна ефективност;
- плоски покриви с ефективна топло-, хидро- и пароизолация;
- окачена вентилируема фасада от естествен камък, стъкло и минерална мазилка;
- алуминиева дограма, троен стъклопакет, система Reynaers, тъмносива;
- луксозни общи части;
- висококачествени електрически асансьори с безмашинни помещения с капацитет до 9 човека и луксозни кабини;
- високи тавани 2.75 см;
- отопление на ТЕЦ;
- контролиран достъп, видеонаблюдение, денонощна охрана.
Районът е един от най-предпочитаните и престижните в столицата поради изцяло изградената инфраструктура, добрите транспортни връзки и близостта до идеален център. На разположение са множество магазини, заведения, училище, детска градина и всичко необходимо за комфортен живот. Метростанция 'Джеймс Баучер' е в непосредствена близост, а за разходки и отдих Южен парк е само на минути пешеходно разстояние.
CreditERA предоставя безплатна консултация и съдействие при финансиране на избрания от Вас имот от всички водещи банки в страната и ще договори най-добрите условия за вас!
Оферта 4060879
Виж всички обяви в goldestate.bazar.bg или тук
        
       
         
         
         
             
             
            






