! ! ! МОДЕРНА ВИЗИЯ ! ! ! БЕЗУПРЕЧНО СТРОИТЕЛСТВО ! ! ! ИНВЕСТИТОР НАЛОЖЕН НА ПАЗАРА ! ! !
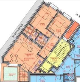
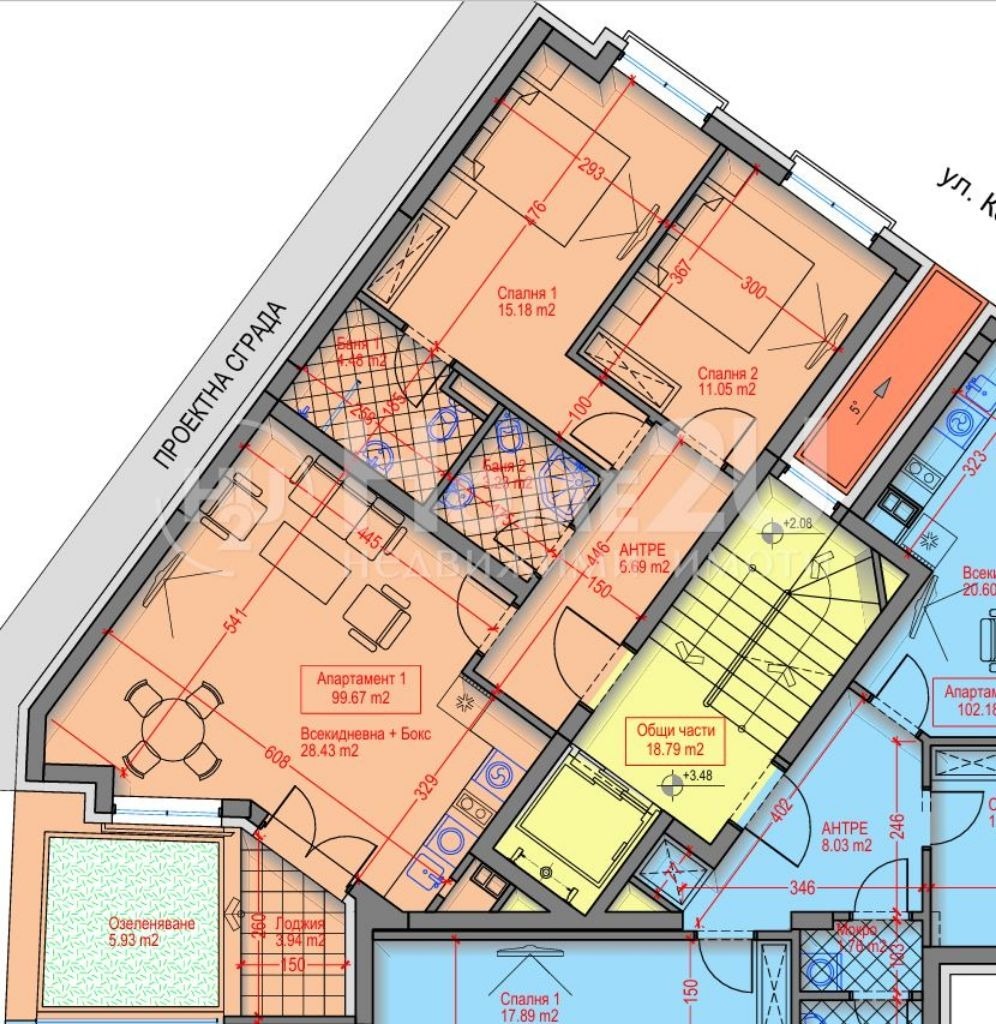
Home2U предлага 3-стаен апартамент в центъра на София, на пешеходно разстояние от ДГ 104 Моят свят , и СМГ, спирки на градски транспорт, хранителни магазини и паркове. Имотът е с площ 122.50 кв.м, разположен на 2-ри етаж и се състои от входно антре, дневна с излаз към озеленена тераса, две непреходни спални (едната със собствено санитарно помещение) и отделна баня с тоалетна.
Акт 14 се очаква през декември 2025 г.,
Акт 16 в края на 2026 г.
Отопление на ток.
Сградата е с високо качество на строителство от доказан инвеститор с реализирани проекти в столицата, За ваше улеснение прилагаме схема на разпределение!
Стандартна схема на плащане:
30% Предварителен договор
30% Акт 14
30% Акт 15
10% Акт 16
Ако желаете да закупите този имот, обадете се и цитирайте посочения код: 135649







