Схема на плащане 10% на ПД/ 90 % на Акт 15
Тристаен апартамент в новостроящ се жилищен комплекс в кв. Витоша, ул. Жечо Атанасов
Предлагаме за продажба тристаен апартамент, разположен на 2-ри етаж в новострояща се модерна жилищна сграда, отличаваща се с висок клас строителство, дограма и окачена фасада - комбинация между камък и laminam. С отличното си и функционално разпределение, този дом предлага топлина, светлина и комфорт за вашето семейство.
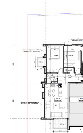
Разпределение:
Просторен хол с кухненски бокс с две изложения
Две самостоятелни спални, едната от които с прилежаща баня с тоалетна и дрешник.
Втора баня с тоалетна.
Два балкона - на хола и на едната спалня.
Опция за закупуване на подземен гараж
Предимства на сградата:
Зелен двор и озеленени площи създават чувство за пространство и спокойствие
Оградена територия и контрол на достъпа гарантирана сигурност и уединение
Висококачествено строителство окачена фасада, съвременна визия и дълготрайност
Петкамерна дограма висок клас отлична шумо и топлоизолация
Отличителни общи части с камък Patagonia и гранит.
Откриване на строителна площадка - есен 2025г.
Акт 14 - Есента на 2026г.
Акт 15 - Есента на 2027г.
Акт 16 - Началото на 2028г.
Разсрочена схема на плашане спрямо етапите на строителство.
Възможност за банково кредитиране след Акт 14
Този апартамент е съчетание от модерен стил, практичност и уют, което го прави отличен избор както за семейно жилище, така и за успешна инвестиция.







