Билдинг Бокс предлага за продажба тристаен апартамент в новострояща се сграда в сърцето на столицата.
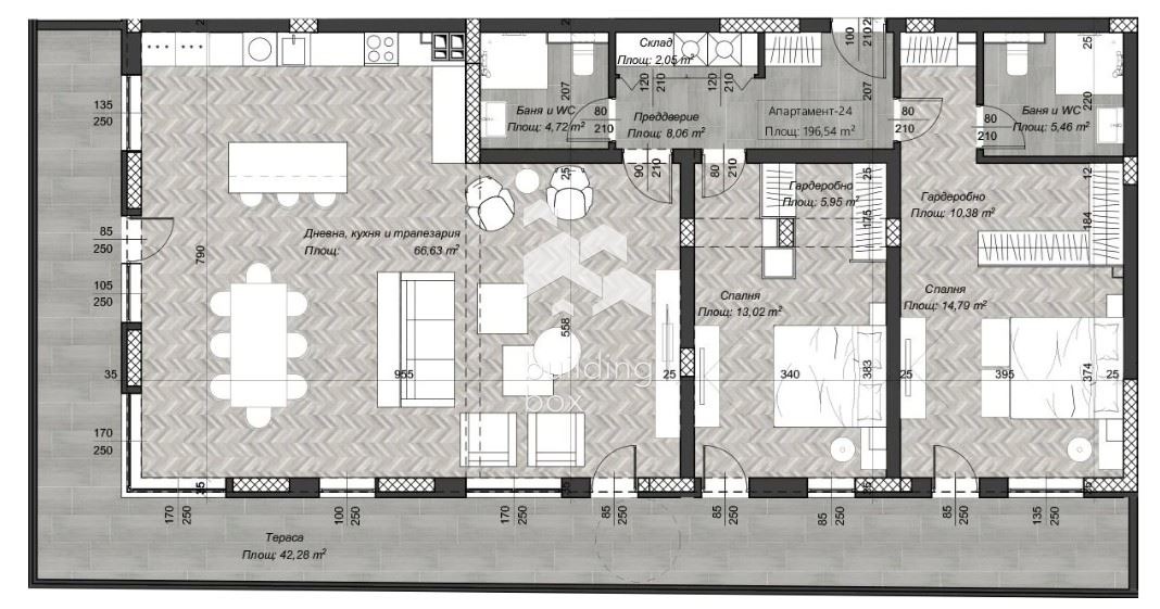
Апартаментът се намира на пети етаж от общо четиринадесет етажа, със застроена площ от 196.54 кв.м и има следното разпределение: антре, дневна с кухненски бокс, две спални, две бани с тоалетни, склад, тераса. Жилището е с изложение запад и север. Отопление на ток.
Сградата ще бъде изпълнена с висок клас материали, фасада - HPL панели и мазилка. Заложено е на дограма с немски алуминиев профил с троен стъклопакет Sch?co. Тухлите ще бъдат керамични с дебелина 25см и 12см от Wienerberger. Входни пространства с декоративна рамка с облицовка от камък, а асансьорът е на доказалата се марка OTIS, изпозвана в сгради като Емпайър Стейт Билдинг и Бурж Халифа.
Проектът ще бъде реализиран от опитен строител с над 70 реализирани проекта. Локацията е отлична в близост до паркове, метро и множество спирки на градски транспорт, магазини, ресторанти, училища и детски градини. Жилищата са функционални, светли и просторни с височина на таваните 3.20 м.
Сградата е на етап фундамент и ще бъде завършена в началото на 2028г.
Предлагат се и други апартаменти, както надземни и подземни паркоместа на цени от 40 000 евро.
Билдинг Бокс предоставя безплатна консултация и съдействие при финансиране на избрания от Вас имот.
Оферта 23929







