Директно от инвеститор;
Отлична локация;
В близост до метростанция Дружба ;
Луксозно изпълнение на фасада и общи части;
Високо качество на строителните материали;
Утвърден инвеститор на българския пазар;
Гъвкави схеми на плащане;
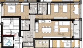
Апартамент Б04, състоящ се от антре, дневна с кухня и трапезария с излаз на тераса, баня с тоалетна, две спални, всяка със собствена баня. Възможност за покупка на подземен гараж или паркомясто.
Проект ИСКЪР ПАРК РЕЗИДЕНС стартира есента на 2025г. в един от най-бързо развиващите се райони в столицата ж.к. Дружба разширение. Сградата е решена с модерен дизайн и ще заеме ключово място в градоустройствения силует, вписвайки се хармонично в заобикалящата я среда. Локацията на която се намира е изключително атрактивна, благодарение на добрата комуникация, която предлага само на метри от метростанция Дружба и няколко спирки на автобусни линии, както и на близостта си до учебни заведения, поликлиника, културни и търговски обекти, и др. Десететажната сграда е разделена на три входа, предлагащи голямо разнообразие от дву-, три- и четиристайни апартаменти. Разпределението на жилищните обекти е внимателно обмислено, за да предложи максимален комфорт и високо качество на живот на своите бъдещи обитатели. Паркирането е решено в две подземни нива с паркоместа и гаражи, както и паркоместа на двора. ИСКЪР ПАРК ще бъде богато озеленен и предвижда организирането на споделени пространства за живущите на територията си. От оптимално разпределен двустаен до просторен тристаен апартамент, от апартамент със самостоятелен озеленен двор до пентхаус с панорамни гледки в този проект всеки може да открие това, което търси както за инвестиция, така и за собствено ползване.
Резервирайте сега Вашият НОВ ДОМ! Свържете се с нас на тел. +359 876 677 888 или ни пишете на [email protected] за повече информация! Нашите проекти може да разгледате на сайта ни: http://izlak.com/
Виж всички обяви в izlak.bazar.bg или тук







