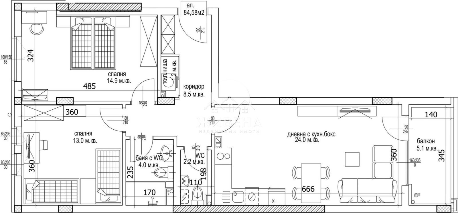
Агенция Живена предлага за продажба 3-стаен апартамент, стартиращ строеж на луксозен жилищен комплекс в района на Кайсиева градина, град Варна. Апартаментът е с обща площ - 99.59 кв.м, жилищна площ - 84.02 кв.м, изложение: изток/запад, разположен на 1-ви етаж от общо 9. Разпределен е по следния начин: дневна с кухненски бокс (24.0 кв.м), 2 спални (14.9 и 13 кв.м), баня с тоалетна (4 кв.м), отделна тоалетна (2.2 кв.м), килер/ниша (0.9 кв.м), коридор (8.5 кв.м) и балкон (5.1 кв.м). Имотът ще се издава в степен на завършеност - по БДС: гипсова мазилка, циментова замазка, PVC дограма (5 или 6-камерна с двойни стъклопакети шир. 26 мм, 4 мм четири сезона и 4 мм бяло флоатно стъкло), ел. инсталация - завършена с ключове, контакти, оптичен кабел до апартамент; ВиК инсталация - на тапа; блиндирана външна врата с облечена декоративна каса. Общи части на сградата: декоративна мазилка, подови настилки и стъпала от гранитогрес или гранит, асансьори Orona (вкл. подземните гаражи). Комплексът се намира до булевард Цар Освободител в района на Метро, магазините за техника и обзавеждане. Предлагат се различен тип апартаменти - с една, две или три спални, разнообразни по площ и разпределения, функционални апартаменти, подходящи за млади семейства, просторни жилища с панорамни гледки. На партера са предвидени търговски обекти за удобство на живущите. Подземното ниво е изцяло отделено за гаражи и паркоместа, а в дворното пространство са обособени външни зони за паркиране и зелени площи. Има възможност за закупуване на паркомясто, на цени, започващи от 14 000 евро. Строежът започва през октомври 2025 г. и ще продължи 3 години; разрешение за ползване (Акт 16) - края на 2028 г. Предлагат се няколко схеми на разсрочено плащане:
Вариант 1: (128 000 евро)
20% при подписване на Предварителен договор
20% при готова покривна плоча на четвърти етаж
40% при подписан Акт 14
20% при подписан Акт 15.
Вариант 2: (124 514 евро)
80% при подписване на ПД
20% при подписан Акт 15.
Вариант 3 (цени от вариант 1):
30% при подписване на ПД
70% с кредит при подписан Акт 14
Вариант 4: (147 918 евро)
20% при подписване на ПД
80% при подписан Акт 15.
Агенция ЖИВЕНА извършва необходимите проверки на имота, който сте избрали, организира всички етапи на сделката до нейното финализиране. Оказваме съдействие за отпускане на банков кредит. Оферта 7474







