ТОПИММО предлага за продажба тристаен апартамент В15 в новостроящ се луксозен комплекс в кв. Кайсиева градина. Строителната компания е утвърдена и доказала се на пазара с над 20 завършени и продадени обекта в град Варна.
Комплексът се изгражда с най-качествени материали според изискванията на Европейския съюз, ще бъде завършен с луксозни общи части, безшумен асансьор и БЕЗ такса поддръжка!
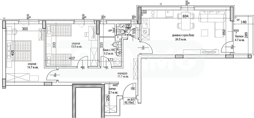
Апартаментът е разположен на 4-ти етаж от 9 и е със следното разпределение: антре, дневна с кухненска част, 2 спални, баня с тоалетна, килер и балкон. Жилището ще бъде издадено по БДС.
Локацията е в непосредствена близост до магазини, училище, детска градина, автобусни спирки.
Етапи и срокове:
Откриване на строителна площадка 01.10.2025 г.
Акт образец 14 31.03.2027 г.
Акт образец 15 - 01.10.2028 г.
Разрешение за ползаване на сградите до 3 /три/ месеца от завършване на строежа и подписване на акт обр.15
В сградата са налични за продажба и други двустайни, тристайни, четиристаен, открити и закрити паркоместа.
Открити и закрити паркоместа от 15000 до 19000 Евро.
Посочената цена е при схема на плащане 80% при подписване на предварителен договор и 20 % на Акт 15.
Предлагат се още три начина за плащане, като има и съответно оскъпяване в цената.
20 % при подписване на предваритетлен договор и 80 % на Акт 15.
30% при подписване на Предварителен договор 20% при готова покривна плоча на четвърти етаж 30% при подписан Акт14 20% при подписан Акт 15.
40% при подписване на Предварителен договор 60% с кредит при подписан Акт 14.
СТЕПЕН ЗА ЗАВЪРШЕНОСТ НА ОБЕКТИ
Общи части на сградата
подови настилки и стъпала от гранитогрес или гранит
стени - декоративна мазилка
асансьори - ORONA
Апартамент
вътрешни стени - тухла с гипсова мазилка;
тавани гипсокартон
под на стаи - циментова замазка;
баня - тоалет: под циментова замазка, стени вароциментова мазилка;
ел. инсталация: завършена напълно до ключове, контакти, оптичен кабел до апартамент;
В и К инсталации: завършени до тапа;
Изграждане на тръбни връзки за монтаж на климатици, на определени по архитектура места.
Външна врата блиндирана с облечена декоративна каса;
Прозорци:Висококачествена PVC дограма - 5 или 6 камерна с двойни стъклопакети ширина 26 мм, 6 мм четири сезона/ 4 мм бяло флоатно стъкло, подпрозоречни первази.
За повече информация свържете се с нас! Референтен номер: AP-4349







