Оферта 1524
Агенция AZ Estate предлага тристаен апартамент в новостроящ се комплекс 'СКАРАБЕЙ ПОМОРИЕ'.
Комплексът се намира на няколко минути пеша от лечебните кални бани, медицински центрове, плажна ивица, футболен стадион и централната част на града.
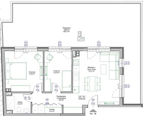
Апартамента ще се състои от антре, дневна с кухненски бокс, гардеробна, две спални, баня с тоалетна и голяма покривна тераса от 60кв.м.
Основни характеристики:
Перфектна локация - на тиха улица с бърз достъп до центъра и морския бряг.
Модерна архитектура и енергоефективни решения.
Асансьор, луксозни общи части и контролиран достъп.
Гъвкави схеми на плащане и възможност за покупка на зелено .
Защо Поморие?
Град Поморие е известен с лечебната си кал, приятния климат и уютната атмосфера. Години наред привлича както туристи, така и хора, търсещи спокоен начин на живот в близост до морето.
Идеален избор както за постоянно живеене, така и за ваканционен имот или инвестиция.
Строителството предвиждаме да започнем м.октомври 2025г., като срокът за завършване е 18 месеца след стартиране на строителните дейности.
Към момента, подписването на предварителните договори стартираме със следната стандартна схема на плащане:
3 000 евро - до 7 дни след разписване на предварителен договор;
40% - до 7 дни след уведомление за откриване на строителна площадка;
30% - до 7 дни след уведомление за Акт 14 на сградата;
20% - до 7 дни след уведомление за Акт 15 на сградата;
10% - до окончателното прехвърляне на имота/Акт 16.
При допълнителна договорка може да се изготви и индивидуална схема на плащане!
На разположение сме за огледи и консултации.







