С РАЗРЕШЕНИЕ ЗА СТРОЕЖ И С ОТКРИТА СТРОИТЕЛНА ЛИНИЯ!
БЕЗ КОМИСИОН!!!
На този етап имате възможност да резервирате директно от СОБСТВЕНИК вашия бъдещ ДОМ при най-изгодни цени!
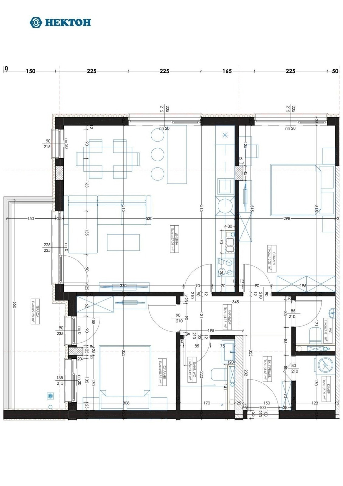
Предлагам ви изключително функционален тристаен апартамент с изложение югозапад.
Жилището се състои от входно предверие, коридор, просторна дневна с кухненска част 27 м2, спалня 11 м2, втора спалня 16м2 с излаз от двете стаи към тераса 9 м2, баня с WC, втори тоалет и килер.
Апаратамента се характеризира като изключително функционален, светал и топъл имот с перфектно изложение, идеален за живеене или за инвестиция.
ПРЕДИМСТВА:
НОВА СГРАДА ЧАСТ ОТ КОМПЛЕКС АЗАЛИЯ
Големи и светли стаи с панорамни френски прозорци!
Качествено строителство от утвърдена строителна фирма с опит и име в бранша!
Опция за закупуване на повече на брой паркоместа и складови помещения в сградата!
Начин на издаване:
Имотите се издават по БДС. Подове на циментова замазка, стени и тавани на гипсова мазилка, водопровод на тапи, канализация - отворен край, електрообзавеждане с ел. ключове и контакти, оборудвано ел. табло и с окабеляване за интернет и за кабелна телевизия, входна врата, прозорци и балконски врати с ПВЦ дограма.
За комфорта и удобството на живущите е осигурено, и достатъчно голямо разнообразие от паркоместа: външни, наземни, подземни, единични, и двойни гаражни клетки.
AZALIA RESIDENCE 4 се състои от два входа и има 6 надземни етажа /партерен и 5 жилищни/, както и подземно ниво под двата входа за паркинг зона и складови помещения. В сградата има общо 53 апартамента.
Информация за комплекс Azalia Residence
Комплексът се отличава с модерна архитектурна визия, функционални разпределения, просторни и светли стаи с правилни форми, и с изчистени, и красиви фасадни решения.
Със своите ПЕТ отделни сгради комплексът предлага на бъдещите си собственици избор от двустайни, тристайни и четиристайни жилища с различни квадратури.
Ситуирането на сградите, гарантира слънчева светлина и панорамни гледки от всеки жилищен етаж. Отстоянието от съседните сгради осигурява усещането за простор и свобода, а близостта до парка предлага възможност за релаксация сред зеленина и природа.
Новите собственици ще имат на разположение всичко необходимо на пешеходно разстояние. Магазини, аптеки, 3 000 кв.м парк с алеи за разходка, спирка на градски транспорт, училища и детски градини, пазар, поликлиника, големи вериги магазини като Jumbo и Kaufland. А в непосредствена близост се строи и нова модерна многопрофилна болница! Всички удобства, които са ви нужни ще са на една ръка разстояние!
Етапност на изпълнение:
Сграда AZALIA RESIDENCE 1 е въведена в експлоатация;
Сграда AZALIA RESIDENCE 2 е пред Акт 15, очаква се сградата да бъде въведена в експлоатация до септември 2026г.
Сграда AZALIA RESIDENCE 3 е пред Акт 14, очаква се сградата да бъде въведена в експлоатация до края на 2026г.
Сграда AZALIA RESIDENCE 4 е с открита строителна линия, стартирало строителство, очаква се сградата да бъде въведена в експлоатация до средата на 2027г.
Сграда AZALIA RESIDENCE 5 е на етап Акт 14, очаква се сградата да бъде въведена в експлоатация до септември 2026г.
Не пропускайте възможността да се възлолзвате от предлаганите гъвкави начини на закупуване!
При необходимост от банково финасиране ще ви окажем необходимата подкрепа, съдействие и консултиране.
Контакти за допълнителна иформация,огледи, преглед на проектна документация и запитвания:
Офис: Нектон 2 ООД, гр. Варна, бул. Република 23
Телефон: +359 885 99 55 10 E-mail: [email protected]
Виж всички обяви в nekton.bazar.bg или тук







