'БЕСТ СЕЛЪРС' представя на Вашето внимание изключително функционален тристаен имот, с просторни помещения, ситуиран в изцяло нова сграда, отговаряща на най-високи стандарти.
! ЦЕНАТА НА ИМОТА Е БЕЗ ВКЛЮЧЕНО ДДС!
За да не изпуснете този имот, обадете се сега и цитирайте този код: 20373.
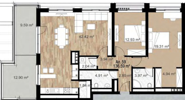
РАЗПРЕДЕЛЕНИЕ: Входно преддверие, просторна всекидневна с трапезария, спалня с бана и тоалетна и гардеробна, едно санитарно помещение, мокро помещение и тераса.
СГРАДА: Масивно тухлено строителство от 2025 година. Етаж 11/15.
ЛОКАЦИЯ: ж.к. 'Зона Б-5'. Апартаментът се намира на пешеходно разстояние от парк 'Възраждане', 67 ОУ 'Васил Друмев' и ДГ 119 'Детска планета'-филиал, в близост до хипермаркет 'Билла' и хипермаркет 'Кауфланд', Спортен комплекс 'Възраждане' и Аквапарк 'Възраждане'. Бърз достъп до бул. 'Акад. Иван Евстратиев'.
ЗА СГРАДАТА:
Проектът за сградата е изтъкан от модерна визия и функционални разпределения. Използвани са само качествени материали. Ситуиран е върху изключително просторен парцел, като застрояването ще бъде само 1/4 от него. Останалите площи ще бъдат заети от собствена паркова среда, с цветни алеи, градини, беседки и детски площадки. За пълно удобство на живущите в комплекса ще бъде изградена и търговка част на партерното ниво. Всички апартаменти са с правилни форми и с тераси.
---
'БЕСТ СЕЛЪРС' е Вашият партньор при сключването на сделка с недвижим имот от първия оглед до финалния подпис. Екипът ни от професионалисти е твърдо решен да промени представата Ви за пазара на недвижими имоти и да Ви остави с приятни емоции след приключването на една от най-важните сделки в живота Ви. Можете да разчитате на нас за ПЪЛНО съдействие в търговските преговори, абсолютно прозрачна обстойна проверка на историята на имота за целия период, консултация и набавяне на пълния пакет документация, необходими за финализиране. На купувачите, разчитащи на банков кредит сме готови да осигурим НАПЪЛНО БЕЗПЛАТНО професионално кредитно обслужване от водещи НЕЗАВИСИМИ кредитни посредници. ОДОБРЕНИЕ ДО 24 часа.







