ТРИСТАЕН АПАРТАМЕНТ С ХАРАКТЕР!!! ХРИСТО СМИРНЕНСКИ!!!
Предлагаме на Вашето внимание, светъл и просторен дом на среден етаж, с югоизточно изложение и френски прозорци, които изпълват всяко помещение с естествена светлина.
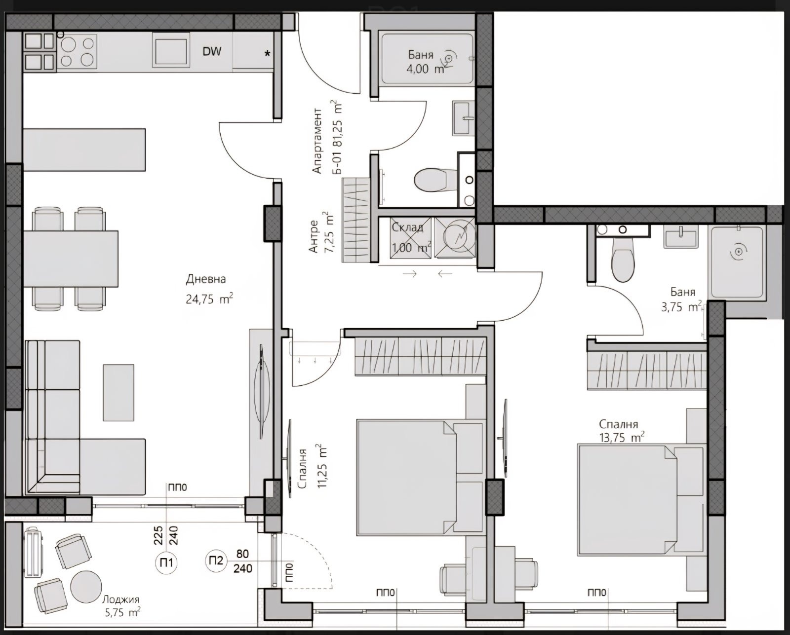
Разпределение: дневна с кухненски кът и трапезария, две спални, две бани с тоалетни, тераса и склад.
Сграда с изискан силует и вентилируема фасада от алуминиеви панели в контрастни тонове придава модерен облик и гарантира енергийна ефективност.
Общите части са изпълнени с внимание към детайла луксозни настилки, модерно осветление и тиха елегантност.
Комфорт и сигурност!
Подземни и външни паркоместа, гаражи с подготовка за зарядни станции. Контролиран достъп и 24/7 видеонаблюдение за спокойствие на живущите.
Озеленени алеи и уютни кътове за отдих, допълнени от модерни детски площадки място, където градът среща природата.
Обадете се сега и цитирайте следния код 8154







