За повече информация и огледи, цитирайте следния код: 264000
Отлично предложение за семейно жилище или инвестиция. Имотът е част от нова сграда с планирано завършване през 2026 г., проектиран с внимание към функционалността и комфорта. Общата площ от 96 кв.м осигурява просторни и светли помещения, логично разпределение и достатъчно място за организиран ежедневен живот. Локацията предлага удобен достъп до централната част на града и множество градски удобства.
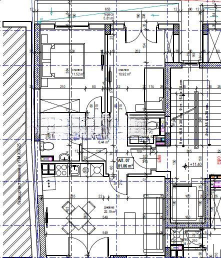
- Тип имот: 3-стаен апартамент
- Локация: София, кв. Банишора
- Общa площ: 96 кв.м
- Година на построяване: 2026 г.
- Брой стаи: 3
- Брой спални: 2
- Балкони: 2
- Бани с тоалетна: 1
- Отделни тоалетни: 1
С възможност за закупуване на гараж.
- Разпределение: просторна дневна с кухненски бокс, две самостоятелни спални, две тераси, баня с WC, отделна тоалетна.
- Предимства: функционално разпределение, светли помещения, ново строителство, отлична градска локация, подходящ и за отдаване под наем.
Квартал:
- Банишора е централен и добре уреден район с удобен достъп до основни булеварди и градски транспорт, включително трамваи и метро.
- Наблизо ще откриете магазини, училища, медицински услуги и зелени пространства всичко необходимо за комфортен градски живот.
Матена Естейт, предлага безплатно кредитно консултиране, ремонтни дейности и професионално почистване.
Виж всички обяви в matena.bazar.bg или тук
        
       
         
         
         
         
         
         
         
             
             
             
             
             
             
            






