LUXIMMO FINEST ESTATES: www.luximmo.bg
В процес на строителство.
Очакван Акт 16 - октомври 2026 г.
Представяме за продажба тристаен апартамент, част от уникален проект на първа линия море, близо до Лозенец. Бутикова жилищна среда с директен достъп до плажа, проектирана за живот в синхрон с морето и планината. Районът се отличава с благоприятен климат през всички сезони, благодарение на уникалната комбинация от морски и планински въздух, осигурена от близостта до Национален парк Странджа .
Покупка без комисиона.
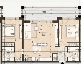
Имотът е с обща площ от 122,20 кв.м, разположен на 2-ри етаж в сграда Б, със следното разпределение:
антре;
дневен тракт с кухня;
две спални;
две бани с тоалет;
тераса.
Жилището се издава по БДС, на шпакловка и замазка, с премиум материали и мисъл за дълготрайност. Подходящо е както за лично ползване, така и за инвестиция - краткосрочно отдаване или дългосрочен наем.
За комплекса
Комплексът се състои от три сгради, в затворена територия, с проектирани двустайни и тристайни апартаменти, с функционално разпределение, като на партерно ниво към жилищата има прилежащи озеленени дворове. Височината на таваните от 2,90 м и френските прозорци, изпълват пространството със светлина и простор. Паркирането е обезпечено с паркоместа на подземно и наземно ниво на сградата.
Общите части ще бъдат луксозно завършени, отговаряйки на високите стандарти на проекта. На територията ще откриете басейн, зони за отдих, красиво озеленени и павирани алеи, осветени и луксозно завършени площи.
Очакваме Вашето запитване
Ако желаете да организирате оглед на имот, който Ви интересува, или да посетите някой от нашите офиси, моля свържете се с нас. За да уговорите ден и час за среща или оглед, можете да се обадите на ...
Цената на имота е 183 300 евро / 358 503.64 лв. без ДДС или 219 960 евро / 430 204.37 лв. с ДДС. Данъчен кредит може да се ползва при определени условия.
За повече информация свържете се с нас и цитирайте референтния номер на имота. Моля, кажете, че сте видeли обявата в този сайт.
Референтен номер: LXH-134593
Тел: 0888 360 754, 0554 57 087
Отговорен брокер:Екатерина Георгиева
Без комисиона от купувача







