RE/MAX River Estate има удовоствието Ви представи тристаен апартамент в новострояща се жилищна монтолитна сграда на тиха улица в близост до стария център на гр. Русе.
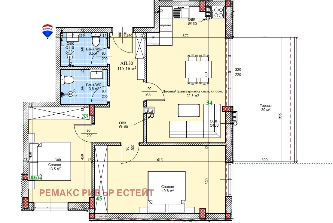
Апартаментът е разположен на пети жилищен етаж от общо седем етажа с обща площ от 138,41 кв.м. разпределени както следва:
- входно антре
- две бани с два санитарни възела
- коридор
- всекидневна и кухня в отворено пространство с излаз на тераса
- тераса 30 кв.м.
- спалня 1
- спалня 2
- избено помещение
Локация
Районът осигурява спокойна жилищна атмосфера, което го прави предпочитан за живеене. В близост може да намерите всичко необходимо за комфортен начин на живот: детска градина, училище, аптеки, хранителни магазини, бензиностанция, спирка на градския транспорт, на пешеходно разстояние от центъра на града.
Строителство:
Проектът за изграждане е съобразен с изискванията на съвременните технологии за енергийна ефективност, което ще осигури на новите обитатели минимални разходи на енергия. Материалите, които ще се използват са с високо качество и съвременни технологии в строителството.
Имотите и общите части на сградата ще бъдат предадени в следния вид:
- Входна врата
- Стени и тавани с машинно положени гипсови мазилки
- Под с положени циментови замазки
- Шесткамерна PVC дограма с троен стъклопакет
- Завършена фасада по прокт с топлоизолационна система и структурна мазилка
- Луксозен асансьор със спирка на всички етажи
- Завършени общи части в сградата- стълбища с гранитогрес и парапети, стени и тавани с шпакловка и латекс
- Вертикална планировка, съгласно проекта
- Електроинсталация с монтирани осветитлени тела в общите части и централно Ел. табло, оборудвано с двойнотарифни електромери и свързано с външната елетропеносна мрежа
- Електроинсталация вътрешна с монтирани в апартаментни табла с автоматични предпазители без ключове и контакти
- ВиК част, завършена вертикална и хоризонтална ВиК инсталация от полипропилен до тапи с водопровод за топла и студена вода с монтирани индивидуални водомери, с външна ВиК връзка.
Всички апартаменти се издават по БДС, което позволява на новите собственици да обзаведат и подредят по свой вкус и желание - плюсът на новото строителство.
Допълнително:
- Има възможност за закупуване на гаражи на ниво сутерен на преференциални цени.
- Също така в сградата има свободни още апартаменти.
- Ще има възможност за включване към газопреносната мрежа.
Атрактивна схема на плащане съобразена с етапа на строителство.
RE/MAX съдейства БЕЗПЛАТНО при кандидатстване за банков ипотечен кредит, включително още на етап Акт 14 и предоставя преференциални условия чрез партньорствата си с водещи банки в страната.
📞 За повече информация и огледи обадете се на посочения телефон.
Виж всички обяви в riverestate.bazar.bg или тук







