PS Property продава тристаен апартамент в близост до училище, спирка на градски транспорт, хранителни магазини и други.
Район: Железник
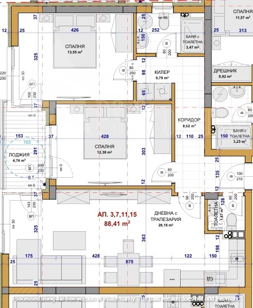
Разпределение: входно антре , всекидневна с трапезария , две просторни спални, баня с тоалетна, отделна самостоятелна тоалетна, килер и тераса с излас от всички стай.
Обща площ: 99,50кв.м.
Изложение: запад
Апартамента се намира в малка бутикова сграда с едва 16 апартамента . Сградата е със съвременна визия и луксозни общи части. Възможност за отделно закупуване на партерен гараж или парко място.
Агенция PS Property предлага БЕЗПЛАТНА консултация и съдействие при ипотечен или потребителски кредит, като услугата не е обвързана с покупка на имот.
Виж всички обяви в psproperty.bazar.bg или тук







