Реф. номер: 2618
ТОП ЛОКАЦИЯ В БЛИЗОСТ ДО УЛ. РАЯ! ВИСОКОКАЧЕСТВЕНО СТРОИТЕЛСТВО! УТВЪРДЕН ИНВЕСТИТОР! ЮЖНО ИЗЛОЖЕНИЕ!
Предлагаме ви тристаен апартамент в новострояща се луксозна жилищна сграда в кв. Христо Смирненски!
Основни характеристики на имота:
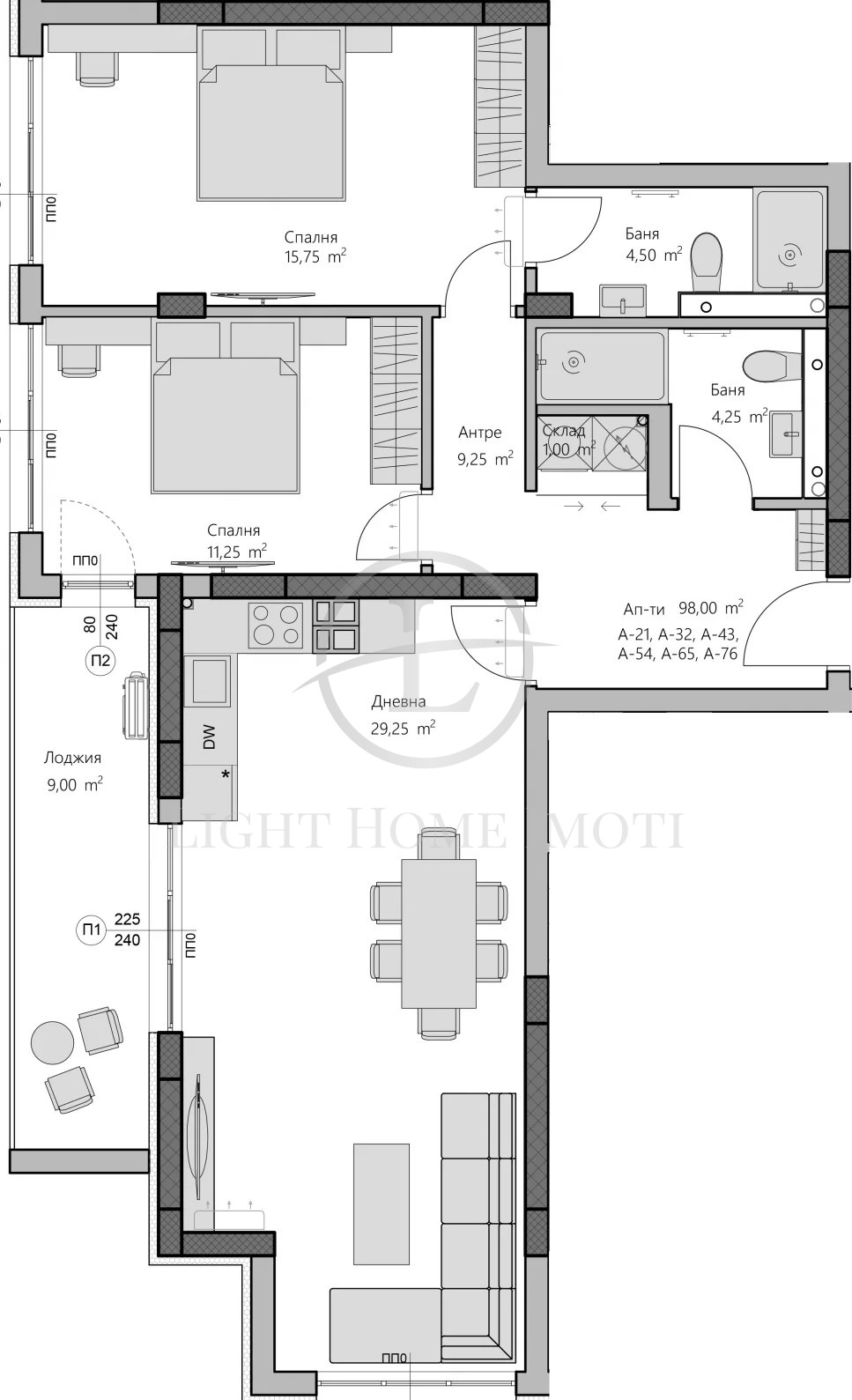
- Площ: 115.98 кв.м
- Разпределение: Просторен хол с кухненски бокс, две спални, две бани с тоалетни, склад, антре и тераса
- Вид строителство: Тухла (ново строителство)
- Изложение: Юг
- Етажност: 5 ет. от 10 ет. (асансьор)
- Паркиране: Възможност за закупуване на гараж, подземни и надземни паркоместа
Налични са двустайни, тристайни и четиристайни апартаменти!
Проектът се обобщава с модерна жилищна концепция, която обединява уют, стил и практичност в сърцето на кв. Христо Смирненски. Двете сгради са внимателно проектирани с акцент върху всеки детайл, осигурявайки хармонично съчетание между градската динамика и домашния уют. Всяко жилище е планирано така, че да предлага максимална светлина, простор и функционалност – с усещане за класа и комфорт.
За повече информация и организиране на огледи, моля, свържете се с нас на посочения номер, като ще Ви е необходим следният референтен номер: 2618
Лайт Хоум имоти е доверен партньор на най-големите банкови институции в страната и съдейства за преференциални условия при нужда от кредитиране. Ще получите юридическо съдействие през целия процес на сделката, както и съдействие при подготовка, подаване и получаване на всички необходими документи за сделката.
Виж всички обяви в lighthomeimoti.bazar.bg или тук







