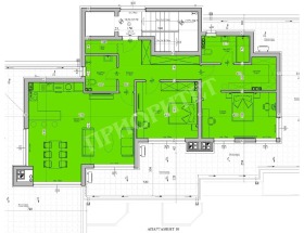
Приоритет продава голям южен, тристаен, панорамен апартамент, тип пентхаус, с два санитарни възела, дрешник и огромна панорамна тераса 129 м². На по-малко от минута от околовръстното.
Опция за закупуване на подземно паркомясто на цени от 13,500 до 15,500, както и външно на цена







