Оферта 67837: НОВО, ЕКСКЛУЗИВНО ПРЕДЛОЖЕНИЕ: Представяме Ви новоизградена жилищна сграда разположена на ТОП ЛОКАЦИЯ !!!
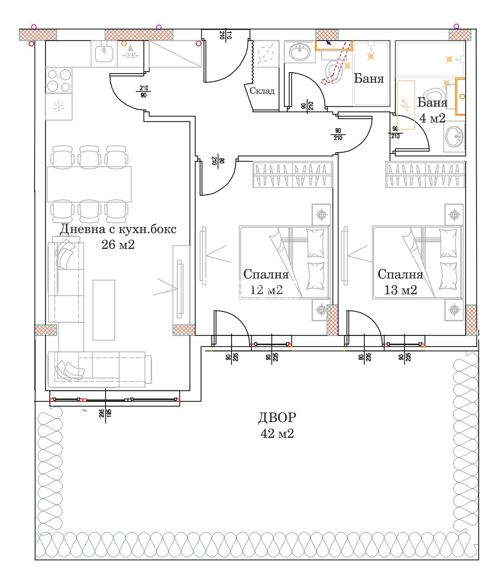
АПАРТАМЕНТИ с просторни стаи с правилни форми и много светлина!!! Жилището което Ви презентираме е с ИЗЦЯЛО ЮЖНО ИЗЛОЖЕНИЕ и следното функционално разпределение: дневна с трапезария и кухненски бокс; две спални; две бани с тоалетни; склад; антре и СОБСТВЕН ДВОР 42кв.м с излаз от трите стаи .
ЗА СТРОИТЕЛЯ: Обектът се изпълнява от строителна фирма с дългогодишен опит , доказала се в изграждането на модерни жилищни сгради. Строителството се осъществява с висококачествени материали и съвременни технологии, по европейски стандарт, петкамерна PVC дограма, червена Австрийска Тухла, масивна Блиндирана входна врата, сензорно осветление, хидравлични асансьори с огледална кабина.
ПАРКИРАНЕ: сградата разполага с партерни и подземни паркоместа и гаражи.
Възможност за закупуване на разсрочено плащане в рамките на строителството или чрез Банков Кредит!!!
ЧУДЕСНА ИНВЕСТИЦИЯ !!
ВИЖТЕ ОЩЕ ИЗГОДНИ ОФЕРТИ НА https://www.kondorimoti.com/ С ЕЖЕДНЕВНА АКТУАЛИЗАЦИЯ!







