АКТ 15! ПРЕДСТОЯЩ АКТ 16!
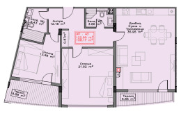
Представяме на Вашето внимание тристаен апартамент находящ се на трети жилищен етаж, състоящ се от коридор, просторна всекидневна с кухненски бокс и трапезен кът, две спални, две бани с тоалетни, две тераси и избено помещение.
ВЪЗМОЖНОСТ ЗА ДОПЪЛНИТЕЛНО ЗАКУПУВАНЕ НА ПАРКОМЕСТА!
Сградата е изградена съгласно европейските директиви за строителство, като са използвани строителни и довършителни материали от най-висок клас в синхром с най-модерни методи на изграждане и строителство!
Вентилируема окачена фасада, която дава по-добра защита от високи и ниски температури, конденз, дъжд и шум, както и дълги интервали на обслужване и минимални съпътстващи разходи. За намаляване на консумацията на енергия за отопление и защита на хората от природните сили е използвана каменна вата, чрез която се изолира шума, независимо отвън или от съседни помещения. Стените са изградени с най-висок клас керамични блокове 'Винербергер', които ще Ви осигуряват естествена топлоизолация и климатизация, звукоизолация, пожарозащита, здравина, микроклимат, ниска равновесна влажност, екологичност и дълготрайност. Използвана е най-новата изолация от минерална вата от фирма 'Исовер', която е произведена от 100% натурални суровини, за да се подсигури най-високо качество на въздуха. Използвани са профили за гипскартон 'Ригипрофил', които увеличават с 50% здравината на стените!
Профилна система за прозорци 'АЛУМИЛ' са прозорци, които комбинират ефективни решения за широк диапазон функционални, архитектурни и проектни изисквания в една високо термоизолираща система.
Тръбите на водопроводната инсталация са полипропиленови 'Лейвин Екопластик'. Този вид тръби не отлагат котлен камък по стените си и не корозират.
Изградена хибридна система за отопление и охлаждане от фирма 'Имергаз', която се характеризира с най-съвременната технология, която съчетава високоефективен газов котел с термопомпа за възобновяема енергия. Те могат да бъдат до 35% по-ефективни от обикновения газов котел, като ви спестяват пари от сметките за енергия на вашия дом и намаляват до минимум общите вредни емисии в атмосферата. Хибридната система се състои от комбиниран газов котел, който е монтиран на закрито, заедно с термопомпа, която е разположена отвън.
Съдействаме за осгуряване на ипотечен кредит с най-добри условия според възможностите Ви!







