✅ Среден апартамент.
✅ Фиксирана цена до АКТ 16.
✅ Нова луксозна сграда; разсрочено плащане. Доказан строител!
✅ Статут: апартамент. Без преход.
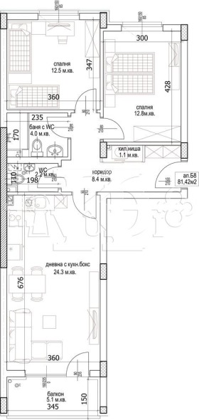
Представяме Ви тристаен апартамент, находящ се в новострояща се тухлена сграда с асансьор.
Състои се от коридор, всекидневна, две спални, баня с тоалетна, отделно тоалетна, килер и балкон. В допълнение, пред закритата тераса има БОНУС открита тераса.
Възможност за покупка на паркомясто.
Предлагаме разсрочено плащане съобразено с вашите желания.
Сградата ще бъде на 9 етажа и предлага разнообразие от двустайни, тристайни и четиристайни апартаменти с различни типове разпределения и квадратури, благоприятно изложение и красива панорама от по-високите етажи.
В близост се намират хипермаркет Метро, КАТ-Варна, Техномаркет, Технополис, Сима и други. Бързият достъп до булеварди осигурява удобна връзка с централните части на града.
👉 Заявете със стоп депозит сега а не каквото е останало на по-късен етап.
За контакт и оглед - брокер недвижими имоти: Дарин Щерев
'РУДИ КЕЙ': Компанията предлага всички необходими юридически и технически проверки на имота, както и възможностите за оптималната им реализация, организира всички етапи на сделка за покупко-продажба или наемни отношения до нейното финализиране с нотариално прехвърляне на имота. Съдейства за отпускане на банкови кредити при възможно най-добри условия за клиента. Компанията е регистрирана по ЗЗЛД като администратор на лични данни, което гарантира сигурността на клиентите. Ако проявявате интерес към тази оферта, необходима Ви е допълнителна информация, желаете да направите оглед на имота, оставаме на Ваше разположение за всякакви въпроси.
За контакт и оглед - брокер недвижими имоти: Дарин Щерев
Виж всички обяви в rudikagents.bazar.bg или тук







