НОВО КАЧЕСТВЕНО СТРОИТЕЛСТВО! СГРАДА РАЗПОЛОЖЕНА В РАЙОН ПОГРЕБИ! ВЪЗМОЖНОСТ ЗА ИЗБОР НА РАЗЛИЧНИ ОБЕКТИ!
Агенция за недвижими имоти НОВ ВЕК Ви представя нов проект, разположен в район Погреби, на 10 мин. пеша от центъра на гр. Варна и Катедралата. На 5 мин. пеша от училище, детска градина, медицински център, магазини и аптеки. Възможност за избор между различни етажи и изложения, паркоместа и подземен паркинг! Морска панорама, 24 часово видео наблюдение, контролиран достъп. Сградата е разположена в близост до центъра на Варна, с удобни транспортни връзки в целия град.
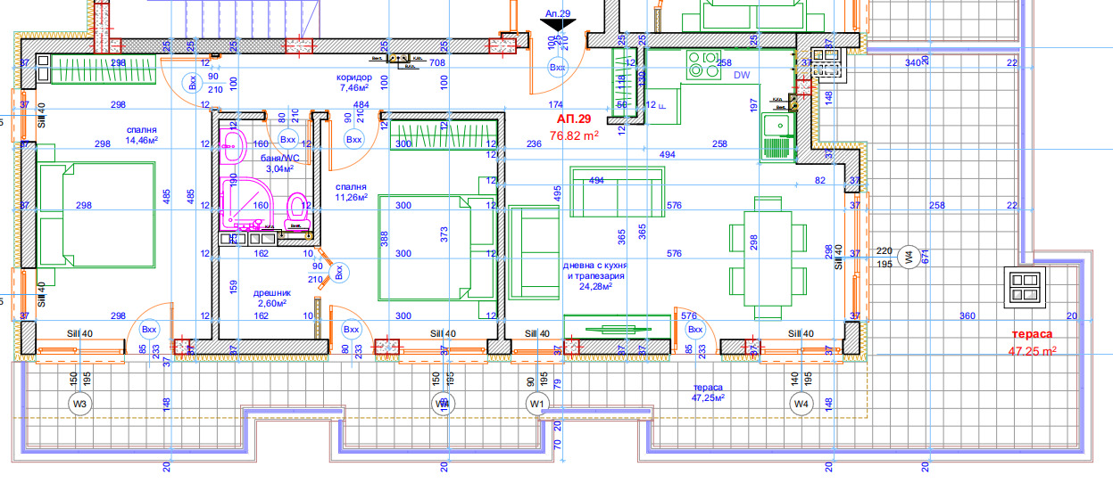
Имотът е с чиста жилищна площ от 124 кв.м и се състои от:
- коридор/антре - 7,46 кв.м.;
- дневна с кухня и трапезария - 24,28 кв.м.;
- две спални - 14,46 кв.м. и 11,26 кв.м.;
- една тераса - 47,25 кв.м.;
- баня с тоалетна - 3,04 кв.м.;
- килер/дрешник - 2,60 кв.м.
ПРЕДИМСТВА НА СГРАДАТА:
Функционални разпределения за максимален комфорт и уют на обитаване;
Светли и просторни стаи с правилни форми;
Панорамна гледка към Варненското езеро;
Качествено изпълнение до степен по завършеност по БДС, подготвено за довършителни дейности;
Възможност за обединение на апартаменти при нужда от по-голяма площ.
Код на оферта:396







