ЕКСКЛУЗИВНО! Ера Тера предлага тристаен апартамент в новострояща се сграда в старата част на Овча купел.
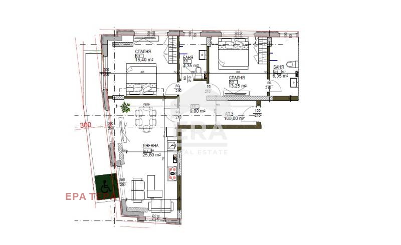
Имотът се намира на втори етаж, с южно изложение в съвременна жилищна сграда. Площта му е 120 кв.м, застроена площ 100кв.м.
Състои се от просторна дневна с трапезария и кухненски бокс, спалня, баня с тоалетна, втора спалня със собствена баня и тоалетна, тераса с южно изложение.
Апартаментът се издава на шпакловка и замазка, с входна врата и високо качество дограма от утвърден инвеститор, с поредна сграда в района.
Сградата е на изключително комуникативно местоположение и в същото време на тиха улица. На 6мин пешеходно разстояние от Нов български университет, спирки на градски транспорт и метро, близо до парк, училища, детски градини и магазини.
Пред АКТ 15
Предвиден АКТ 16 - до август 2026год.
Отопление - Газ.
Към имота има възможност да се закупят две паркомясто (закрито и открито).
ЕРА предлага консултация с архитект-интериорен дизайнер за изготвяне на цялостен проект за довършване, преустройство и обзавеждане на имота.
ЕРА е независим кредитен посредник с лиценз от БНБ с номер BCI000024 и предоставя безплатна консултация и съдействие при финансиране на избран от Вас имот.
Оферта 1104495



