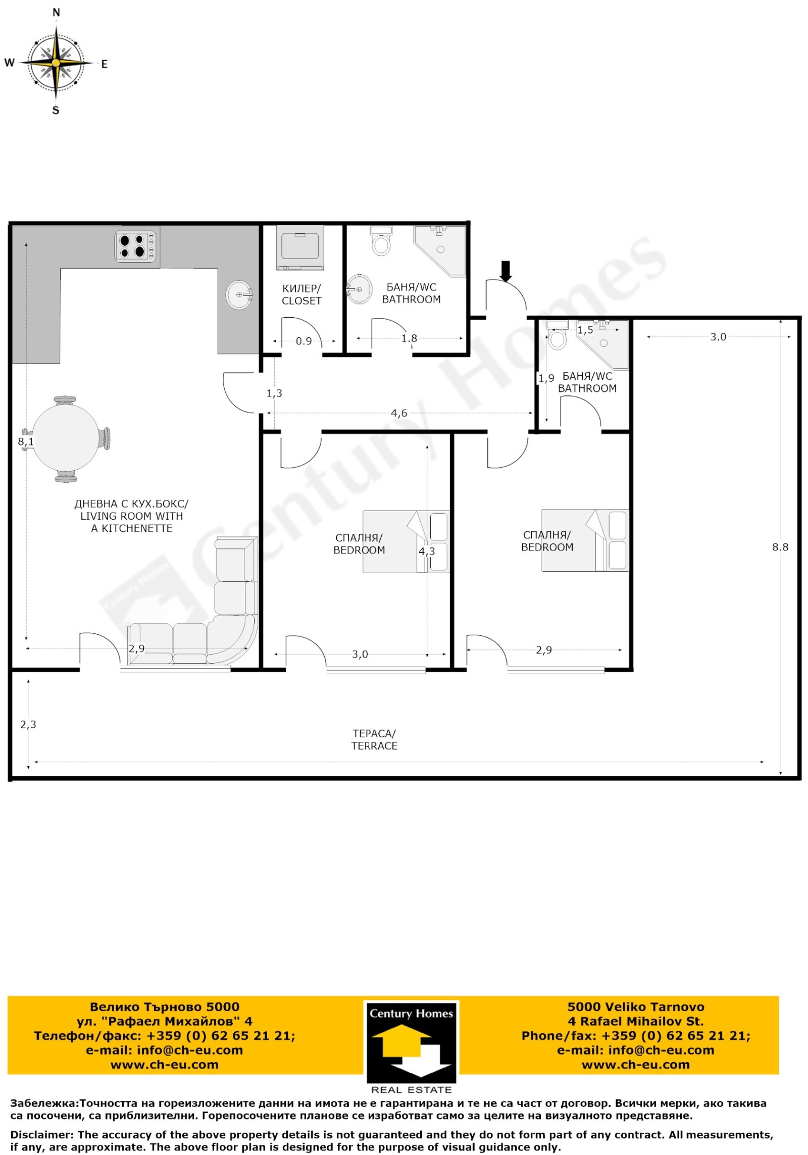
С обща жилищна площ от 133,24 кв.м., имотът включва: две спални, едната от които със собствена баня; светла дневна с кухненски бокс, подходяща за семейни събирания и гости; втора баня/WC; килер/перално помещение с пералня и сушилня, просторна тераса с панорамна гледка към парка, с достъп от всички три стаи.
Апартаментът е разположен на шести етаж в нова жилищна сграда, оборудвана с PVC дограма с ролетни щори, газификация и подово отопление на газ за целогодишен комфорт и енергийна ефективност.
Към имота има възможност за закупуване на гараж от 32 кв.м. в същата сграда на цена от 32 000 EUR.
Имотът съчетава централна локация, зелена паркова среда и съвременни жилищни стандарти, което го прави отличен избор както за лично ползване, така и за инвестиция.
За да разгледате виртуален тур, моля копирайте и поставете линка във Вашия браузер
ВИРТУАЛЕН ТУР:https://app.cloudpano.com/tours/fB3J-X5fm
РЕФ. :104957
Виж всички обяви в century21homes.bazar.bg или тук
        
       
         
         
         
         
         
         
         
         
         
         
         
         
         
         
         
         
         
             
             
             
             
             
             
             
             
             
             
             
             
             
             
             
             
            






