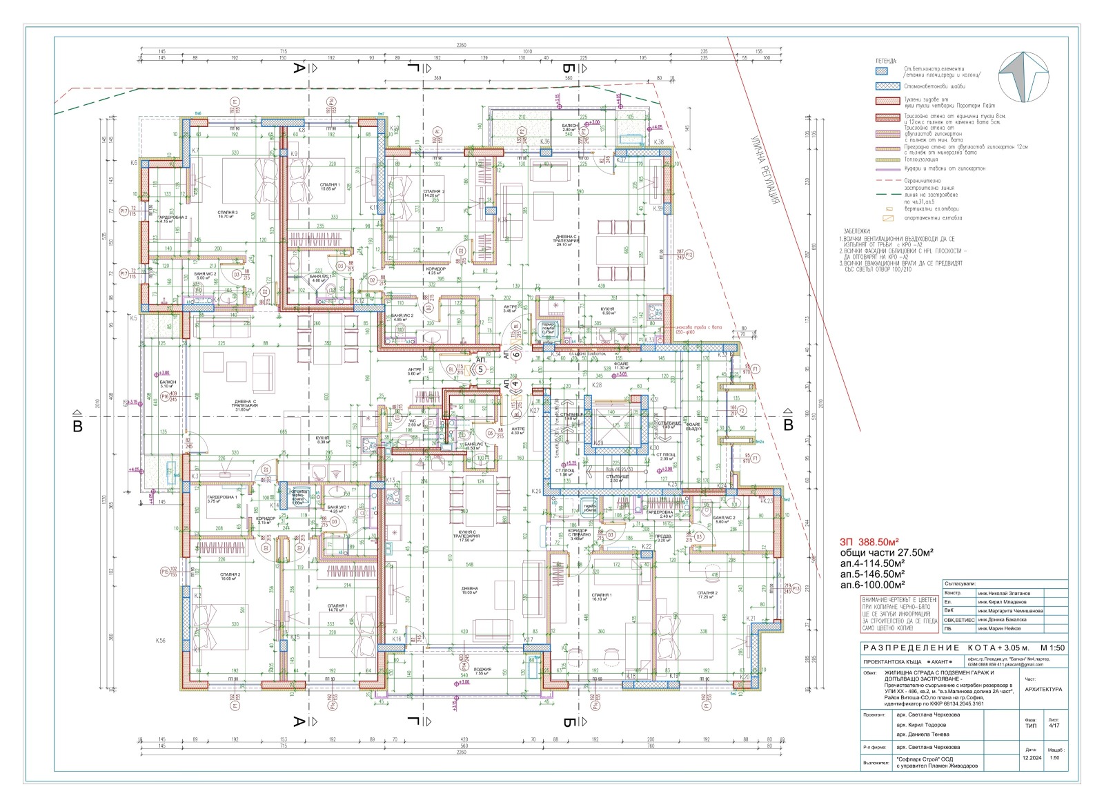
Ап.6 е с РЗП- 115.24кв.м , ЗП - 100 кв.м, разположен на 2 ри етаж, с изложение изток, север .
Разпределение: входно антре, тоалетна и баня за гости, дневена с кухненска част и трапезария, две спални, като едната е със собствен санитарен възел с баня и тоалетна. Тераса пред дневната.
Степен на завършеност: Шпакловка и замазка, асансьор - KONE
Дограма: алуминиева дограма - alumil- трислоен пакет, отопление- посредством термопомпа с водно подово отопление и охлаждане. Прилежащо мазе.
Възможност за покупка на подземнни гаражи паркоместа на цена от 20 000Е до 35 000Е !
Виж всички обяви в scaladi.bazar.bg или тук
        
       
         
         
         
         
         
         
             
             
             
             
             
            






