Лайънс груп недвижими имоти Ви предлага за продажба ТРИСТАЕН АПАРТАМЕНТ с некриваема ПАНОРАМА в новострояща се сграда, ж.к. Кайсиева градина, гр. Варна - район с висока комуникативност и всички удобства в непосредствена близост.
📍 Местоположение: ж.к. Кайсиева градина, гр. Варна
🏢 Сграда: ново строителство (АКТ 16 2027 г.)
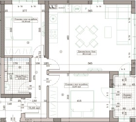
📐 Площ: 84 кв.м
🛏 Разпределение: дневна с кухненска част, 2 спални, баня с тоалетна, килер, тераса
📈 Етаж: 10 от 11
🚗 Опция за паркомясто: 15 000 EUR
💶 Цена: 133 900 EUR
💳 Възможност за разсрочено плащане
🌟 Описание на имота:
Предлагаме за продажба тристаен апартамент, разположен на 10-ти етаж в съвременна новострояща се сграда в ж.к. Кайсиева градина. Сградата е с модерна визия и контрол на достъпа, строителството е в ход, с планирано въвеждане в експлоатация през 2027 г.
Имотът е с оптимално разпределение, подходящ както за собствено ползване, така и за инвестиция с цел отдаване под наем - дневна с кухненски бокс (26,14 кв.м), две спални (13 кв.м и 10,3 кв.м), лоджия (4,15 кв.м) към дневната и едната спалня, баня с тоалетна (4,5 кв.м) и коридор. Към имота има бонус - изба, която е с площ 5,27 кв.м. Високият етаж осигурява чудесна панорамна гледка и много естествена светлина.
🧱 Характеристики:
Строителство: тухла
Асансьор - 2 бр.
Луксозни общи части
Възможност за покупка на паркомясто
Разсрочена схема на плащане
Отлична инфраструктура и локация
Завършен до степен БДС, но строителят предлага възможност за довършване до ключ на изключително изгодни цени.
входна врата, блиндирана с двустранно заключване,
монтирана висок клас петкамерна ПВЦ дограма Рехау, обков Ротто или Сегения, двуцветна с цвят бял отвътре и цветна отвън в зависимост от архитектурата на фасадата, минимална дебелина на стъклопакета 30 мм.
📞 За повече информация и огледи:
Свържете се с нас на посочения телефон или чрез съобщение в платформата.
За огледи и повече информация /0895 142147
Реф./ 14031
Брокер/ Ивелина Недялкова
Цена на имота / 133 900 EUR







