3mo Амалтея продава тристаен апартамент в нова сграда с Разрешение за ползване в ж.к. Люлин 2, микрорайон с отлична инфраструктура.
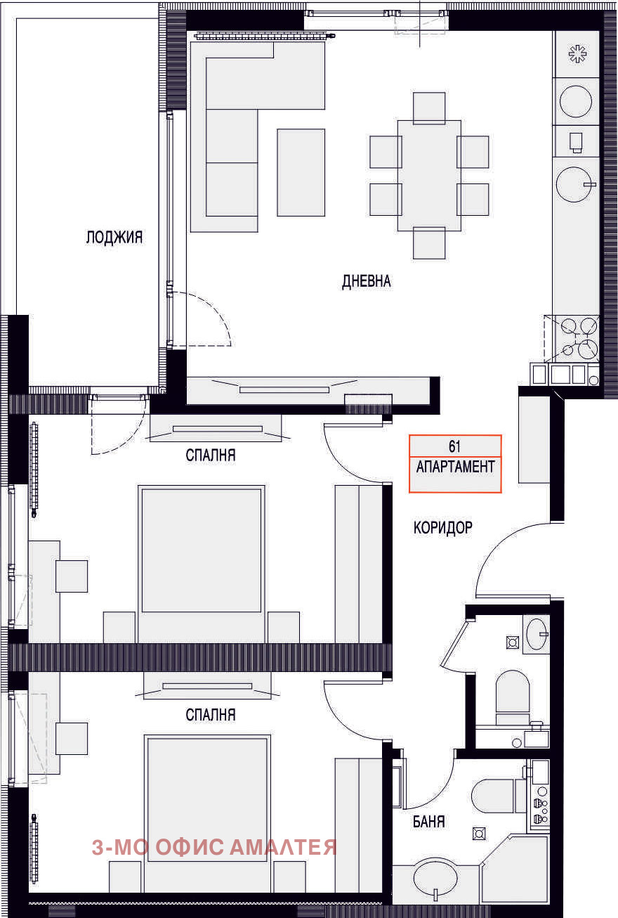
Жилището е с изключително функционално разпределение и се състои от просторна дневна с трапезария и кухненски бокс, две непреходни спални, две сервизни помещения и тераса. Квадратурата е 102 кв.м. с общи части и 85 кв.м. чиста площ. Апартаментът е със западно изложение и се намира на единадесети етаж.
Издава се на фина шпакловка и замазка с блиндирана входна врата, петкамерна PVC дограма с монтиран двоен стъклопакет. Отоплението е на ТЕЦ. Има възможност за покупка на подземно паркомясто. Общите части са луксозно изпълнени с окачени тавани и светло сиви гранитни плочи. За удобство на собствениците са монтирани два високоскоростни асансьора марка ORONA. Контролът на достъп ще се осъществява с индивидуален чип и видео домофонна инсталация. Във всеки апартамент е предвиден видео домофон със слушалка, звънец и звънчев бутон. Сградата разполага със собствен двор, с много зеленина и места за почивка.
Местоположението на сградата е в близост до метростанция, градски транспорт, множество търговски обекти, банкови офиси, детски градини и училища.
Оферта 1052
3mo Амалтея, заедно с лицензирания в БНБ кредитен посредник КРЕДИТ НАВИГАТОР, предоставят на своите клиенти възможност да изберат най-изгодния ипотечен кредит при закупуване на своето жилище. Услугата е БЕЗПЛАТНА.







