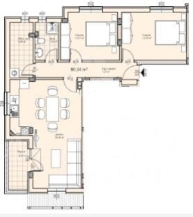
МАЛКА БУТИКОВА СГРАДА!!! ТИХА И СПОКОЙНА ЛОКАЦИЯ!!! АКРОНА ИМОТИ има удоволствието да Ви представи просторно тристайно жилище в малка, новострояща се сграда в квартал Прослав. Жилището се състои от всекидневна с трапезария и кухненски кът, две спални, баня с тоалетна, склад, входно антре и тераса. Имотът ще бъде издаден на шпакловка и циментова замазка, като на Вас ще се отдаде невероятната възможност да го довършите сами според личните си предпочитания и вкус.
За повече информация или оглед се обадете на посочените телефони!
Оказваме пълно съдействаме за банково кредитиране при най-добри условия и цялостна юридическа проверка на имотите, които предлагаме! Разгледайте пълният ни списък от оферти на www.acronaimoti.bg
Виж всички обяви в acrona.bazar.bg или тук







