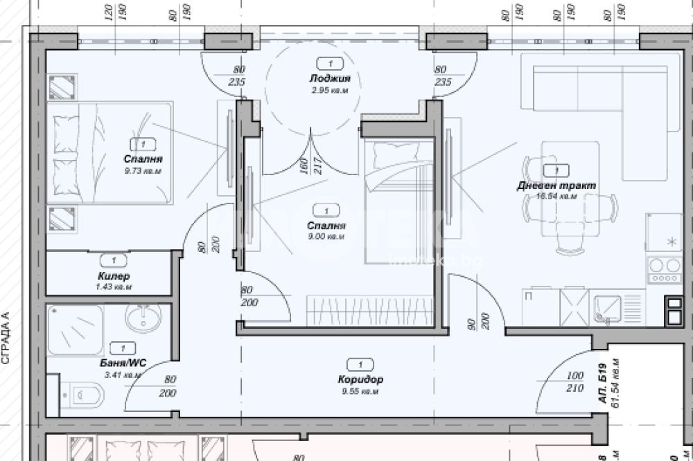
Предлагаме за продажба, тристаен апартамент в модерна жилищна сграда в начален етап на строеж. Жилището разполага със светла дневна с кух.бокс,две спални,баня с тоалет, килер и тераса. Един от последните парцели за сграда с отличен достъп в района.
'М-ст' Пчелина'-тих и перспективен район на гр.Варна предпочитан от много млади семейства.
Модерна жилищна сграда в строеж с много зелени площи и страхотна панорама.
-Гъвкава схема на разсрочено плащане
-Възможност за покупка на паркомясто на отлична цена
-Отличен избор за инвестиция или за живеене
Обади се сега и цитирай този код 656670







