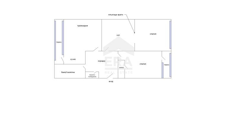
ЕРА Вива продава апартамент с две спални, хол, кухня и трапезария в тухлена сграда до Кметство Приморски, гр. Варна. Имотът е със застроена площ от 87.64 кв.м. и се състои от коридор /6.70 кв.м./, кухня и трапезария /17 кв.м./ с тераса, хол /13.50 кв.м./, две спални /15 и 13 кв.м./, килер, баня с тоалетна, перално помещение и тераса. Жилището е след ремонт и се предлага обзаведено и оборудвано с електроуреди. Подовите настилки в спалните са от тиково дърво, в коридора и трапезарията е теракота. Към апартамента има прилежащо сутеренно помещение с площ от 32 кв.м., което се състои от кухня, две стаи и баня с тоалетна и е подходящо за отдаване под наем.
Тухлена сграда с много добре поддържани общи части и контрол на достъпа.
Отлична локация. Район с много добре изградена инфраструктура. Сградата се намира в близост до кметство Приморски, 7 СУ 'Найден Геров', ДЦ 17 'Петър Берон', множество магазини, заведения, ателиета за услуги и спирки на градския транспорт.
Оферта 1009370







