Агенция Център Естейт представя изключителна възможност за покупка на тристаен апартамент с двор в новостроящия се жилищен комплекс от затворен тип Кайлъка Гардънс Премиум. Комплексът съчетава уют, естетика и сигурност в тиха, зелена зона с удобен достъп до града.
📍 Локация
Разположен в комуникативна и тиха част на града, Кайлъка Гардънс Премиум предлага съвременно и балансирано градско ежедневие близо до всичко важно, но достатъчно отдалечено от шума.
🛏 За имота:
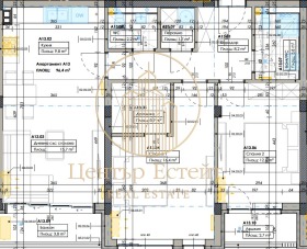
Тип: Тристаен апартамент
Входно антре 8.2 кв.м
Две спални помещения :
Спалня 1 : 16.4 кв.м + Дрешник 3.9 кв.м
Спалня 2 : 12.6 кв.м
Перално помещение 1.7 кв.м
Дневна със столова 15.7 кв.м
Кухня 9.8 кв.м
Балкон 1 - 3.8 кв.м
Покрита тераса 2 (Лоджия) 2.7 кв.м
Баня с тоалетна
Тоалетна
Застроена площ: 96.35 кв.м
Обща площ: 113.43 кв.м
Изложение: Юг
Състояние при предаване: Машинна фина шпакловка, входна и монтирани интериорни врати
Височина на таваните: 3 метра за усещане за простор и светлина
Френски прозорци и слънчеви открити тераси
Възможност за закупуване на гараж или паркомясто
🌳 За комплекса:
Затворен тип с контролиран достъп и 24/7 видеонаблюдение
Ландшафтно проектирана градина с:
Детски кът
Зони за отдих беседки, пейки с перголи
Смарт поливна система
Стрийт фитнес
Подземен етаж с:
27 гаража от които 11 са двойни
28 паркоместа
63 мазета
✨ Защо да изберете Кайлъка Гардънс Премиум ?
Изтънчен архитектурен стил
Простор, зеленина и светлина
Перфектен баланс между градски удобства и спокойствие
Престиж, сигурност и дългосрочна стойност на инвестицията
📞 Свържете се с нас още днес, за да получите повече информация и организирате оглед. 0897 300 094 / 0877 762 332
'Център Естейт' Защото домът трябва да бъде повече от квадратура. Той трябва да бъде преживяване.
Код на оферта: 41
Виж всички обяви в centerestate.bazar.bg или тук







