В процес на строителство.
Очакван Акт 16 - март 2027 г.
Покупка без комисиона.
Представяме за продажба тристаен апартамент в нова жилищна сграда, без такса поддръжка, разположена в бързо развиващ се район в Несебър.
Локация
Сградата е на 250 метра от плажа, в непосредствена близост до магазин, автобусна спирка, спортен терен, магазини, ресторанти и други удобства.
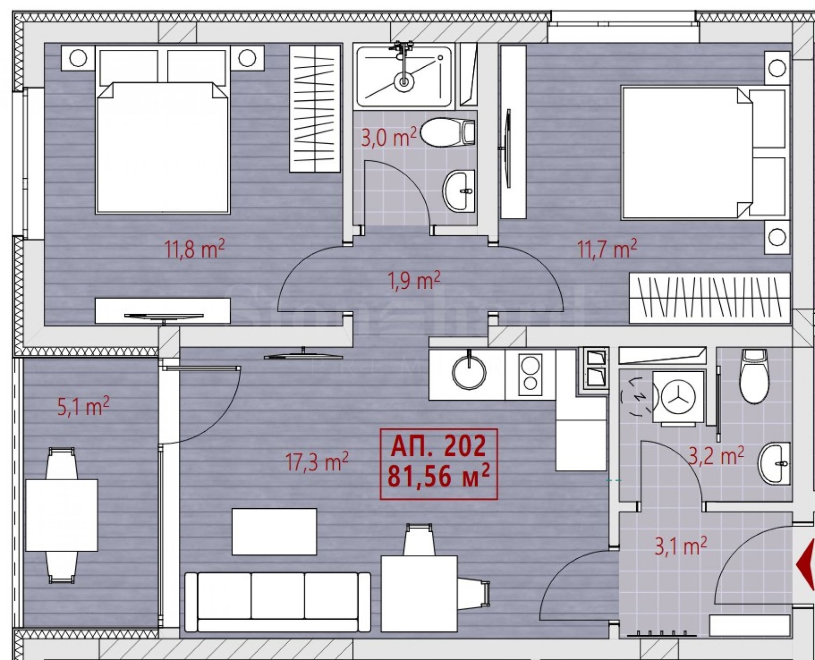
Имотът е с обща площ от 83,30 кв.м, ситуиран на 4-ти етаж със следното разпределение: антре, дневна с кухня, две спални, баня с тоалет, санитарно помещение и тераса.
Издава се в степен на завършеност 'до ключ' има възможност за обзавеждане по предложен от инвеститора дизайн, както и монтаж на електрически топъл под.
Може да бъде закупено паркомясто и складово помещение допълнително.
За сградата
Сградата е проектирана на пет етажа, с 20 апартамента, тристайни и двустайни жилища с функционално разпределени пространства. Предвидена за целогодишно ползване, сградата ще бъде изолирана по всички стандарти за максимално енергоспестяване, с висококачествена дограма от известния производител Rehau.
Очакваме Вашето запитване
Ако желаете да организирате оглед на имот, който Ви интересува, или да посетите някой от нашите офиси, моля свържете се с нас. За да уговорите ден и час за среща или оглед, можете да се обадите на посочения в обявата телефон или да изпратите запитване чрез електронната поща. Нашият консултант ще Ви съдейства с всички необходими подробности и ще уговори удобно за Вас време.
Търсите подходящия за Вас имот?
Не се колебайте да се свържете с нас и да ни разкажете за Вашите нужди и предпочитания. Нашият екип ще проведе задълбочено проучване на пазара, за да Ви предложи имоти, които точно отговарят на Вашите критерии. Разполагаме с изключително портфолио от висококачествени и ексклузивни жилища, които са достъпни само за нашите клиенти. За да ...
За повече информация свържете се с нас и цитирайте референтния номер на имота. Моля, кажете, че сте видeли обявата в този сайт.
Референтен номер: Елит Несебър - LXH-133503
Тел: +359 889 007 010
Моб: +359 877 777 888 (WhatsApp, Viber, SMS)
Отговорен брокер:Стоунхард ПРЕМИЪР
Без комисиона от купувача
Виж всички обяви в stonehardbg.bazar.bg или тук







