ЕМ ДЖИ ЕСТЕЙТ предлага за продажба:
Тристаен апартамент в новопостроена сграда със съвременен облик в ж.к. Меден Рудник зона Б, гр. Бургас
Характеристики на сградата:
АКТ 14
Завършен груб строеж
Разполага с асансьор и паркоместа (на цени от 8000 до 11000 евро)
Характеристики на апартамента:
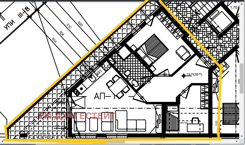
Обща площ: 96.53 кв.м.
Разпределение:
▪️ Коридор
▪️ Просторна дневна с кухненска част
▪️ Две спални (едната с по-малка квадратура)
▪️ Баня с тоалетна
▪️ Тераса: 40.31 кв.м.
Степен на завършеност: на тапа.
Просторен тристаен апартамент, който предлага комфорт и удобство, подходящ за Вашето семейство или за инвестиция!
Функционално разпределение, качествено строителство и отлична инвестиция!
Идеален както за живеене, така и за инвестиция!
В сградата предлагаме и други апартаменти с различно изложение, квадратура и цена възможности за всеки вкус и бюджет!
📞 За повече информация и огледи: Код на обявата: ЖМ-671673
**Агенция Ем Джи Естейт е член на НСНИ и администратор на лични данни.
**Преди огледа се провежда среща в нашия офис, за да се запознаем с изискванията Ви и за да оформим документи съгласно ЗЗД и ЗМИП.
**По време на огледа се подписва Протокол за оглед.
**За този имот не се дължи комисиона към агенцията.
**Предлагаме Ви юридическо съдействие през целия процес на покупката,
**Лицензиран кредитен консултант ще Ви съдейства при банково кредитиране.
Виж всички обяви в mgestate2020.bazar.bg или тук







