БЕЗ КОМИСИОННА ОТ КУПУВАЧ!
Организация фокус има удоволствието да ви представи тристаен апартамент в жилищна сграда в подножието на Младежки хълм в град Пловдив!
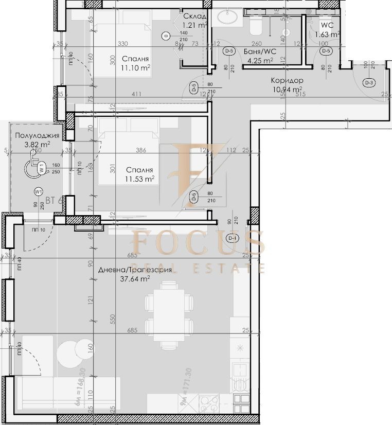
Апартаментът е с обща площ от 107,76 кв.м. със следното разпределение: антре, хол с кухненски бокс, две спални, баня с тоалетна и отделна тоалетна и тераса.
Имотът е с изложение юг-запад.
Ситуиран на 2-ри етаж от общо 5.
Сградата се отличава с модерна визия, качествено строителство и функционални апартаменти, създадени за комфортен и спокоен живот.
Локацията предлага зеленина, тишина и в същото време удобен достъп до централната част на града, което я прави отличен избор както за нов дом, така и за инвестиция.
За удобство на купувачите са предвидени различни схеми на плащане, а очакваният срок за въвеждане в експлоатация е септември 2027 година.
За повече въпроси и желание за огледи, не се колебайте да се свържете с нас!
Референтен номер: 55260







