Агенция ATLANTA предлага за продажба просторен и светъл тристаен апартамент в к.к.Слънчев ден.
Код на оферта: NI-5132
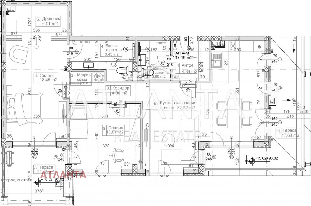
✅ Обща площ: 166 кв.м. (чиста 137 кв.м.)
✅ Етаж: 5 от 7
✅ Тухлено строителство, АКТ 16 2027 г.
Комплексът предлага:
🏡 Затворен тип, контрол на достъпа
🌳 Голяма озеленена площ, алеи за разходки, детски кътове, зони за спорт и отдих
🚗 Паркоместа и гаражи с удобен достъп
Паркоместа - 10 000 евро, гаражи - от 15 000 евро до 20 000 евро.
🌊 Близост до красиви плажове, чист въздух и спокойна среда
Перфектен избор както за дом, така и за инвестиция.
📞 Свържете се с нас за подробности и огледи!
Виж всички обяви в atlanta.bazar.bg или тук







