АКТ 16! Апартаментът се обзавежда до ключ!
Най-добрата схема на плащане- 20% при предварителен договор и 80% след акт 16!
Сградата се намира на ул. Иван Дуйчев . Строи се с хубави и качествени материали- един от най-високите класове дограма като стъклопакет, профил и цвят, изолация, окабеляванеи т.н.
Малка е, само 9 апартамента, което прави живеенето в нея по-комфотно.
Инвеститорът е с опит. Има няколко построени сгради в квартала, които могат да се видят и да се прецени за качеството.
В предварителният договор няма клаузи за индексация => увеличение на цените.
Свободни са 5 апартамента, всички са 3 стайни, с квадратури м/у 110 - 130кв.м.
Има свободни паркоместа - 42 000 евро евро.
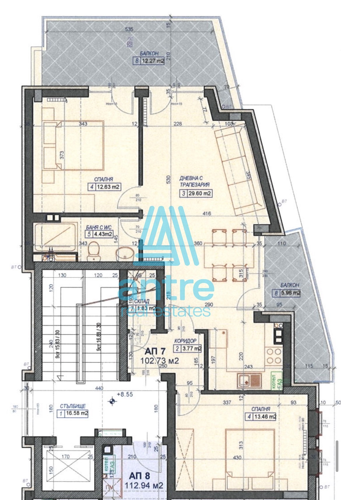
Конкретно обявеният имот (Ап.7) е със следните параметри:
- Етаж 4
- 103 кв.м./115,71 кв.м.
- коридор, дневна с кухненски бокс и трапезария, 2 спални, склад, баня с тоалетна, тоалетна, 2 балкона.
Агенцията работи с комисионна в размер на 3% без ДДС.
При интерес от Ваша страна, свържете се с водещия брокер Цветослав Христов на тел: 0876 550 105 и цитирайте следния КОД:308238.







