ЦЕНИ ОТ ИНВЕСТИТОР! НАПРЕДНАЛО СТРОИТЕЛСТВО! РАЗСРОЧЕНО ПЛАЩАНЕ!
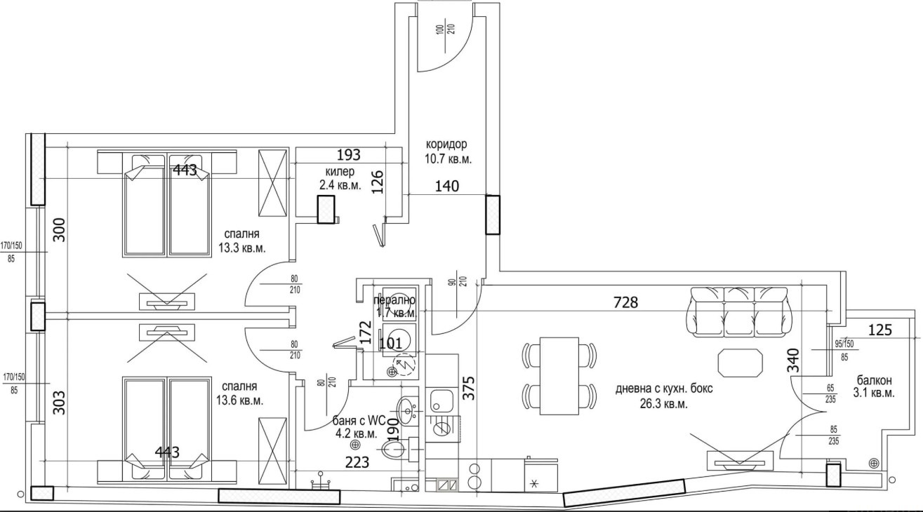
Предлагаме за продажба просторен тристаен апартамент (91кв.м. чисто) в новострояща се луксозна сграда, намираща се на прекрасна локация в Цветен квартал. Разпределението е както следва:
-Коридор, просторен дневен тракт с кухненски кът и излаз на балкон, две спални с излаз на отделна обща тераса, баня с тоалет, перално помещение и килер.
Възможност за покупка на подземни и наземни паркоместа.
Предлагаме две различни схеми на разсрочено плащане и опция за покупка с банков кредит.
За повече информация - 0886 32 02 02 Симеон Георгиев.







