Инвеститор продава без комисионна за купувача просторен тристаен апартамент в новострояща се модерна сграда Атрия, разположена в гр. Варна на ул. Мургаш, до ОУ Стоян Михайловски. Локацията е отлична в близост до училища, магазини, зелени площи и удобен градски транспорт, което прави имота подходящ както за живеене, така и за инвестиция.
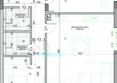
Апартаментът се намира на етаж 9, ап. 44, с чиста площ от 99,60 кв.м. и обща площ 113,42 кв.м. Жилището е с югоизточно изложение и функционално разпределение: просторен дневен тракт от 29,69 кв.м., две спални с площ съответно 15,60 кв.м. и 14,46 кв.м., две бани по 3,80 кв.м. и 3,75 кв.м., килер 1,69 кв.м. и удобна лоджия от 8,57 кв.м. Към апартамента има възможност за закупуване на паркоместа или изби, осигуряващи комфорт и удобство на бъдещите собственици.
Сградата се отличава с висок клас строителство и използвани материали. Ще бъде монтирана петкамерна PVC дограма Rehau с обков Roto или Siegenia , в цвят антрацит. Вратите и прозорците ще са двустранно отваряеми, а стъклопакетът - с минимална дебелина 30 мм, гарантиращ отлична шумо- и топлоизолация. Външните и вътрешни стени ще са изградени от тухли Wienerberger на варо-циментов разтвор. Фасадата ще бъде модерна и функционална, с парапети от закалено стъкло и топлоизолация от EPS с дебелина минимум 8 см, устойчива на стареене и атмосферни влияния. Еркерите ще са изолирани с XPS с дебелина 5 см за допълнителна енергийна ефективност. Партерната част ще бъде изпълнена с EPS топлоизолация и окачена фасада от Etalbond, осигуряващи елегантен и устойчив завършек.
Апартаментът съчетава модерна визия, качествено строителство и удобна локация. Той е отлично решение за семейства, които търсят уютен и светъл дом, както и за хора, желаещи да инвестират в имот с висока стойност във времето.
Цена: 154 818 евро. Контакт за повече информация и огледи: Детелина Неделчева 0898 726 411.







