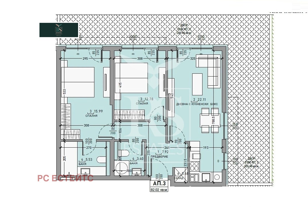
РС ЕСТЕЙТС предлага за продажба:3-ст апартамент на партер с 97,02 кв.м. с общи части и застроена площ 82.02 кв.м. и двор към апартамента 205.48 кв.м.
Нова бутикова жилищна сграда, разположена в предпочитаната част на кв. Малинова долина. Перспективен район с висока инвестиционна стойност и стабилен интерес за дългосрочно отдаване под наем.
Тип имот: Двустайни и тристайни апартаменти
Състояние: БДС (шпакловка и замазка)
Отопление: Ток или възможност за газ
Тип строителство: Тухла, ново строителство
Етажност: 4
Асансьор: да
Изложение: разнообразно включително юг, запад и панорама към планина
Обзавеждане: Необзаведени
Локация:
Районът съчетава тишина, чист въздух и панорамни гледки, с лесен достъп до основни пътни артерии бул. Симеоновско шосе и Околовръстен път. В близост се намират търговски обекти, супермаркети, заведения, училища, спирки на градски транспорт и бъдеща метростанция.
Разпределението е:
Сградата е с четири етажа и включва само 16 апартамента двустайни и тристайни, проектирани с функционални разпределения и просторни помещения. Част от апартаментите на партерно ниво разполагат със собствени двор-тереси. Към всяко жилище има прилежащо мазе.
Предимства на имота:
Висококачествено ново строителство
Малка и добре планирана сграда
Прекрасни гледки към Витоша и Стара планина
Възможност за закупуване на подземни паркоместа (от 30 000 ), гаражи (35 000 ) и наземни паркоместа (28 000 )
Сградата е подходяща както за собствено ползване, така и за инвестиция и отдаване под наем
Район с потенциал за развитие и отлична инфраструктура
Спокойна улица с удобен достъп до града
Очакван срок на завършване: по проект
Оглед на имота:
Можем да организираме оглед на имота в удобно за Вас време. За целта, свържете се с отговорния за офертата брокер и му кажете кога бихте искали да направите оглед.
Резервация на имота:
Имотът може да бъде резервиран и свален от продажба със заплащане на депозит, след което се прекратява провеждането на огледи с други купувачи и започва подготовка на документите за сключване на предварителен и окончателен договор. Свържете се с отговорния брокер за този имот за подробна информация.
Финансиране на имота:
Агенцията си партнира с най-големия кредитен посредник в България и можем да ви съдействаме с преференциални условия за жилищно кредитиране.
Виж всички обяви в rs-estates.bazar.bg или тук
        
       
         
         
         
         
         
             
             
             
             
            






