БЕЗ КОМИСИОННА!
ЦЕНИ ОТ ИНВЕСТИТОР!
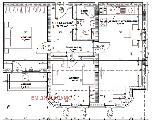
Апартаментът е разположен както следва: дневна, кухня и трапезария; предверие, баня, спалня с излаз към балкон и спалня.
Застроена площ: 74.79 m2
Обща площ:97.22 m2
Етаж: трети жилищен етаж
Акт 16 се очаква 2027г.
Възможност за закупуване на подземни и надземни паркоместа и гаражи на цени от 36.000 EUR, и складови помещения на цени от 8.900 EUR.
Гъвкави схеми на плащане с възможност:
1. 20% - в седем дневен срок от подписване на Предварителния договор;
2. 80% - при издаване на Разрешение за ползванe (Акт 16);
ЗАБ.: ЦЕНАТА СЕ ОСКЪПЯВА С 12%. (При втори вариант)
Луксозна сграда от строител с дългогодишен опит в сферата.
ВСИЧКИ ЦЕНИ СА С ВКЛЮЧЕНО ДДС !
MG Homes предоставя безплатна консултация и съдействие при финансиране на избрания от Вас имот от всички водещи банки в страната и ще договори най-добрите условия за вас!
Виж всички обяви в mghomes.bazar.bg или тук
        
       
         
            






