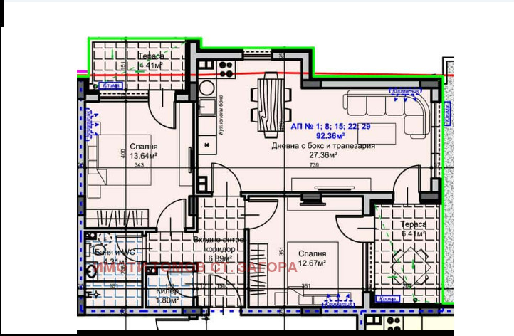
Имоти Томов Стара Загора представя на Вашето внимание, БЕЗ КОМИСИОННА ОТ КУПУВАЧА, тристаен апартамент с площ от 123,05 кв.м. в квартал Железник-запад. Имотът е с изложение юг-север и е разположен на пети етаж в новострояща се седеметажна жилищна сграда и се състои от:
Дневен тракт с кухня и трапезария-27,36 кв.м.;
Родителска Спалня-13,64 кв.м.;
Детска спалня-12,67 кв.м.;
Баня с тоалетна-4,31 кв.м.;
Коридор;
Килер;
Две тераси с излаз от всекидневната и спалнята;
Апартаментите се предлагат със степен на завършеност по БДС. Сградата е със съвременна архитектура и високо качество на вложените материали, с асансьор, контролиран достъп и луксозни общи части и се очаква да бъде завършена до края на 2026 год. Към апартамента може да бъде закупен гараж и паркомясто.
Локацията на сградата и инфраструктурата на района осигуряват на бъдещите си обитатели тиха и спокойна атмосфера и същевременно бърз достъп до ключови комуникации:
Магазини и търговски обекти;
Детски градини и училища.
Допълнителни услуги: Ние ще бъдем с вас не само по време на покупката, но и след това, осигурявайки ви допълнителни услуги по ваше изискване с цел пълноценно и безпроблемно ползване на ново закупения имот. Услугите, които можем да предложим, включват получаване на одобрение за ипотечен кредит, застраховка на недвижимо имущество, застраховка живот, строителни и ремонтни дейности, обзавеждане, юридически и счетоводни услуги и др.
За повече информация ни потърсете в нашият офис, находящ се на ул. Майор Таньо Кавалджиев 135 Имоти Томов Стара Загора, тел.: 0884850909.
Виж всички обяви в imotitomovstz.bazar.bg или тук







